Watton, Brecon - £750 PCM

bedrooms 2 baths 1 receptions 1
savesaved

A lovely, two bed, semi-detached house in a sought-after location. It enjoys parking, an easily managed courtyard garden. Available January 2026.  

Key Features

  • Two Bedrooms
  • Bigger Than It Looks From The Outside
  • Semi-Detached House
  • Easy Access Of Town Centre
  • Private/offroad Parking
  • Courtyard Garden
  • Spacious Living Room
  • Attractive Kitchen /Diner
  • Bathroom & WC
  • Gas Central Heating
  • Walking Distance To The Canal Basin

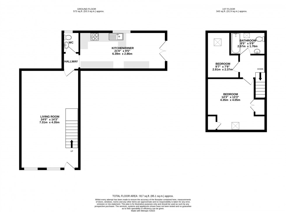
This two bed, semi-detached house is bigger than it looks from the outside. Its accommodation comprises of a spacious living room, WC, lovely kitchen/diner which has a range of cupboard space, integrated eye level oven, hob, plumbing for a dishwasher, washing machine and patio doors out to rear courtyard. Upstairs there are two bedrooms and a bathroom. Outside at the rear there is a lovely patio seating area which could also be used as a further parking space. The property also benefits from gas central heating and uPVC Double Glazing.

The Watton is an attractive and popular tree lined street within walking distance of the town centre, theatre and canal basin. Brecon is a traditional market town, the centre of the Brecon Beacons National Park. Surrounded by wonderful countryside it has a wide range of shops and amenities which include a cinema, theatre, leisure centre, library and golf course. It also has several good primary schools, a secondary school, college of further education and Christ College a private boarding school for boys and girls aged 7-18. With good access links Cardiff, Swansea and Hereford are all an hour’s drive and the nearest train station is in Abergavenny which is 20 miles away.

Council Tax: We have been informed that this property has been placed under council tax band ‘C’.

PLEASE NOTE: ALL CONTRACT HOLDERS ARE REQUIRED TO COMPLETE AN APPLICATION FORM PROVIDING REFERENCES. WE WILL ALSO REQUIRE INFORMATION TO CARRY OUT A CREDIT CHECK WHICH IS PROVIDED BY A THIRD PARTY

• Two Bedrooms

• Bigger Than It Looks From The Outside

• Semi-Detached House

• Easy Access Of Town Centre

• Private/offroad Parking

• Courtyard Garden

• Spacious Living Room

• Attractive Kitchen /Diner

• Bathroom & WC

• Gas Central Heating

• Walking Distance To The Canal Basin

• Freehold

• Deposit £800

• Freehold

• Deposit £800

• EPC - D


Floorplan for Watton, Brecon, Powys
Book a Property Valuation