Chapel Street, Brecon - £225,000

bedrooms 2 baths 1 receptions 1
savesaved

This unique property is a lovely, two bed cottage with parking/courtyard yard and separate barn. In a convenient location its currently a successful holiday let but would also make a great home.

Key Features

  • two double bedrooms
  • lovely unique property with separate barn opposite
  • convenient location
  • parking with electric car charging point
  • attractively finished and presented
  • kitchen/diner
  • cosy living room
  • cloakroom and bathroom
  • no chain
  • currently a holiday let but would also make a lovely home
  • freehold

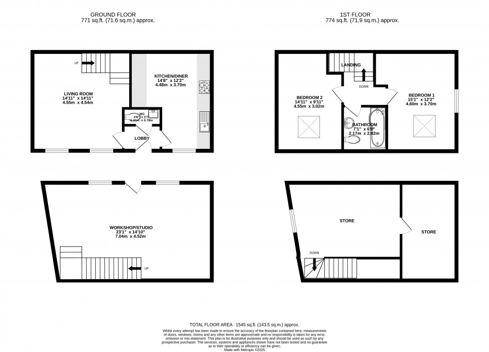
The Stables is a charming unique home, beautifully finished and ready to move straight into. On the ground floor there is an entrance hall with cloakroom, leading to a stylish kitchen/diner fitted with modern units, an integrated oven and hob, fridge/freezer and plumbing for a dishwasher. The cosy living room features an exposed stone wall and stairs taking you to the first floor. Upstairs, there are two double bedrooms, both boasting attractive vaulted ceilings and a well-appointed bathroom. The property also benefits from oak internal doors, uPVC double glazing, gas central heating and an alarm system. Opposite there is a stone barn, currently used as a games room and for storage, but offering fantastic potential to be a studio, office, or even additional accommodation of which planning has been granted for change of use of an existing outbuilding within the curtilage of The Stables to a residential ancillary building. Between the two buildings lies a gated gravel courtyard, providing both parking and outdoor space along with an electric car charging point. Currently run as a successful holiday let, The Stables would equally make a wonderful full-time home or weekend retreat.

Nestled within the heart of the town, tucked away on a side street, The Stables is in a convenient location. Brecon is a charming and historic market town set within the breathtaking Brecon Beacons National Park. Surrounded by stunning countryside, it offers an excellent balance of natural beauty, community spirit and convenience. The town centre is home to a great mix of independent shops, cafés, restaurants and traditional pubs, along with useful amenities such as supermarkets, doctors, a leisure centre and a theatre. For families, there are several well-regarded primary and secondary schools, including Christ College, one of the oldest independent schools in Wales. Outdoor enthusiasts are spoilt for choice, with countless walking and cycling routes, canoeing on the River Usk, and the iconic Pen y Fan just a short drive away. Brecon also benefits from good road links via the A40 and A470, making it easily accessible to Abergavenny, Hereford and Cardiff. With its friendly atmosphere, scenic surroundings and vibrant local community, Brecon offers an exceptional quality of life in one of Wales’ most picturesque settings.

Services: All mains services. Gas central heating. Please note we have not tested the appliances, central heating or services.

Council Tax: We have been informed that this property has been placed under council tax band ‘TBC’.


Floorplan for Chapel Street, Brecon, Powys
EPC Graph for Chapel Street, Brecon, Powys


Book a Property Valuation