Bulwark, Brecon - £500 PCM

receptions 4
savesaved

In a great location, a suite of newly refurbished, first floor offices to let with shared kitchen and toilet facilities.

Key Features

  • first floor suite of offices to rent
  • prominent location
  • shared kitchen and toilet facilities
  • available now
  • ideal for a range of business uses
  • newly refurbished throughout

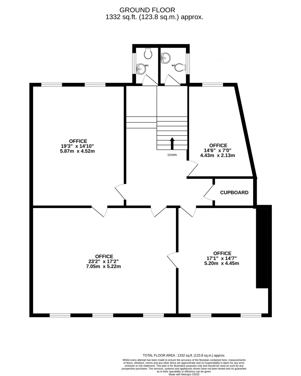
Located in the heart of Brecon town centre, within the landmark former Brecon & Radnor Express building, this first floor suite offers newly refurbished office accommodation in a prominent and easily accessible position. The suite comprises four well-proportioned offices, ideal for a range of business uses and benefits from a shared kitchen and WC facilities with building occupiers.

• First Floor Suite Of Newly Refurbished Offices

• Prominent Town Centre Location

• Four Offices

• Shared WC’s & Kitchen

• Available By Way Of New Lease

• Usual References Required

• Costs: Each Party Responsible For Their Own Costs

• Outgoings: Tenants Responsible For The Usual Outgoings

• Unfurnished


Floorplan for Bulwark, Brecon, Powys
Book a Property Valuation