Conway Street, Brecon - £170,000

bedrooms 3 baths 1 receptions 2
savesaved

Situated in a popular residential area is this three bed, mid-terrace house. In need of modernisation it has lots of potential. No chain!

Key Features

  • three bedrooms
  • popular location
  • walking distance of the town centre and canal basin
  • in need of modernisation but with lots of potential
  • two reception rooms
  • kitchen
  • WC and bathroom
  • no chain
  • low maintenance garden
  • great family home

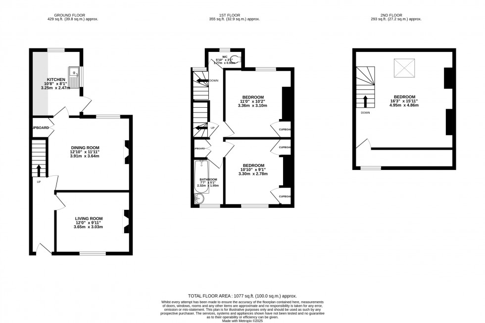
Located in a sought-after and convenient area, this mid-terrace property offers plenty of potential to become a wonderful family home. Although in need of modernisation, it presents a fantastic opportunity for buyers looking to add their own stamp. With no onward chain, it's ready for you to make your mark. The accommodation is set over three floors. On the ground floor, there's an entrance hall, a living room, a separate dining room and a kitchen. Upstairs, the first floor includes two bedrooms, a bathroom and a separate WC, while the third bedroom is located on the second floor. To the rear, the garden is level, low-maintenance and paved with rear pedestrian access.

Conway Street is a no through road just off The Watton and is a popular residential are within walking distance of the town centre and canal basin. Brecon is a traditional market town, the centre of the Brecon Beacons National Park. Surrounded by wonderful countryside it has a wide range of shops and amenities which include a cinema, theatre, leisure centre, library and golf course. It also has several good primary schools, a secondary school, college of further education and Christ College a private boarding school for boys and girls aged 7-18. With good access links Cardiff, Swansea and Hereford are all an hour’s drive and the nearest train station is in Abergavenny which is 20 miles away.

Services: All mains services. Gas fired central heating. Please note we have not tested the appliances, central heating or services.

Council Tax: We have been informed that this property has been placed under council tax band ‘C’.


Floorplan for Conway Street, Brecon, Powys
EPC Graph for Conway Street, Brecon, Powys
Book a Property Valuation