, Gwehelog, Usk - £340,000

bedrooms 2 baths 2 receptions 2
savesaved

Charming and full of potential, this dilapidated two-bedroom cottage nestled on a spacious plot of land offers a unique opportunity for renovation and transformation. Situated in a superb setting and with no onward chain, viewing is encouraged.

Key Features

  • Detached Cottage In Need of Renovation
  • Large plot of approx. 0.60 acres
  • Wonderful countryside location
  • Range of outbuildings
  • Two bedroom cottage with lots of potential
  • No onward chain.

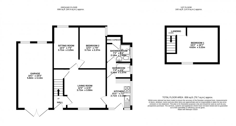
A rare opportunity to acquire an interesting country property. Occupying approximately 0.60 acres of gardens, Plum Tree Cottage is a two bedroom cottage in need of total modernisation. Previously extended on the ground floor the accommodation comprises of a living room, kitchen, sitting room, ground floor bedroom, bath and shower room. Stairs from the entrance hall lead to the main bedroom. We have been informed the property is connected to mains water and electric and serviced by a septic tank for drainage.

The grounds are a real feature of the property and subject to planning could be transformed into something special. There are established trees including fruit trees, hedging and lawns. There is a double garage and a number of outbuildings all of which are in varying states of repair.

Plum Tree Cottage is in a semi-rural position in the village of Gwehelog which has a local pub and a village hall which hosts regular events such as cinema nights and coffee mornings. The town of Usk, is just 3 miles away, and enjoys a traditional shopping street with boutique shops, hotels and restaurants, a primary school, doctors' surgery and vets. There are good road links with the historic border town of Monmouth being just over 11 miles away. The town boasts excellent schools including Haberdashers independent boys and girls' schools and a recently rebuilt state of the art Monmouth Comprehensive School.

Council Tax: We have been informed that this property has been placed under council tax band ‘E’.

Services: Mains electric and water. Private drainage. Please note we have not tested the appliances, central heating or services.

Telephone & Broadband: Telephone- subject to BT transfer regulations. According to offcom the following networks are available: openreach and Ogi. The speeds available are standard, superfast and ultrafast. For more information visit: https://checker.ofcom.org.uk/en-gb/broadband-coverage.

Please note you should always confirm this by speaking to the specific provider you would like to use. This is for guidance only.

Agents Note: Please note there used to be a lane splitting the land and cottage. We have been informed the lane has not be in existence for 50 years. Purchaser will need to satisfy any enquiries with their solicitor.

These sales particulars are hoped to provide a fair description of the property, however all statements are made without responsibility of James Dean and should not be relied upon as statement of fact. They do not form any part of a contract and are issued solely in the understanding that all negotiations are conducted through the firm. Items shown in photographs are not included in the sale unless specifically mentioned within the sales particulars.


Floorplan for Gwehelog, Usk, Monmouthshire
EPC Graph for Gwehelog, Usk, Monmouthshire


Book a Property Valuation