Darenfelin, Llanelly Hill, Abergavenny - £350,000

bedrooms 3 baths 2 receptions 2
savesaved

A fully renovated three bedroom detached house, providing high quality and comfortable living accommodation, perfect for a family and enjoying countryside views, off road parking and sold with no onward chain.

Key Features

  • Modernised Detached House
  • Finished To An Excellent Standard Throughout
  • Three Bedrooms
  • Countryside Views
  • No Chain
  • Kitchen/Dining Room
  • Lounge & Utility Room
  • Bathroom & Downstairs Shower Room
  • Driveway Parking & Garden
  • Oil Central Heating and uPVC Double Glazing
  • Freehold

Ready to move straight into, this modernised, double glazed and oil centrally heated family home is beautifully presented, with fitted carpets and blinds included in the sale, the property is sold with no chain.

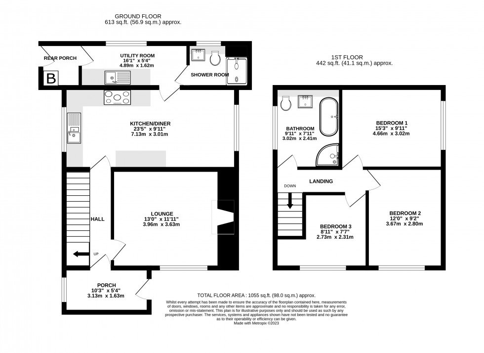
The current owners have replaced the roof, windows, doors and floors, installed new electrics and heating system, as well as replastering all ceilings and walls and updating the kitchen and bathrooms. The house comprises of a front porch and entrance hall, rear porch and useful utility room that provide plenty of storage. The lounge has a multifuel burner and enjoys countryside views and the spacious kitchen/diner has a range of fitted cupboards. Upstairs, there is a contemporary bathroom with separate shower and three comfortable bedrooms, all with large windows taking in views of the Clydach Gorge.

Outside, driveway parking for multiple vehicles has been created, with a stone shed for storage, south-facing lawn and patio seating areas to the side and the front.

Overlooking the Clydach gorge, Darenfelin is a hamlet within the wider locale known as Llanelly Hill, which is located on the edge of the Brecon Beacons National Park, an area of outstanding natural beauty and popular tourist destination. The village has a ’Good Food’ award winning pub, community centre and fantastic walks on your doorstep. It also benefits from excellent transport links with the A465 Heads of the Valleys Road, providing easy access to Cardiff and Bristol, both being approximately an hour’s drive away. The popular nearby village of Gilwern, under three miles away, has a primary school, hall, pubs, petrol garage and local stores.

The larger town of Abergavenny, located six miles away, has a wide range of shops, amenities, hospital and a mainline train station.

Council Tax: We have been informed that this property has been placed under council tax band ‘D’.

Services: Mains water, electric and drainage. Oil fired central heating. Please note we have not tested the appliances, central heating or services.

Telephone & Broadband: Telephone- subject to BT transfer regulations. According to comparethemarket.com the property has broadband speeds of: Download 70.08 Mbps and Upload 18.11 Mbps.

Please note you should always confirm this by speaking to the specific provider you would like to use. This is for guidance only.


Floorplan for Llanelly Hill, Abergavenny, Monmouthshire
EPC Graph for Llanelly Hill, Abergavenny, Monmouthshire


Book a Property Valuation