, Grosmont, Abergavenny - £525,000

bedrooms 4 baths 1 receptions 2
savesaved

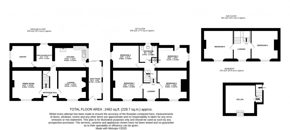
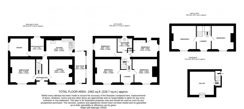
Enjoying a peaceful rural location, with unspoilt countryside views, this stone farmhouse enjoys spacious accommodation over three floors, with up to six bedrooms and a cellar. The property does require renovation and is sold with land totalling 1.77 acres, an outbuilding and no onward chain.

Key Features

  • Large Detached Farm House
  • Requires Renovation
  • Four-Six Bedrooms
  • Rural Location
  • Countryside Views
  • Land Totalling 1.77 Acres
  • Two Reception Rooms
  • Kitchen, Prep Room & Large Pantry
  • uPVC Double Glazing
  • No Chain
  • Freehold

Requiring renovation, this period farmhouse enjoys beautiful countryside views, is sold with no onward chain and already benefits from uPVC double glazing.

The house comprises of an entrance hall, with access to the cellar under the stairs, lounge with stone fireplace housing a wood-burning stove, a sitting/dining room, kitchen with solid fuel-fired Rayburn, prep-room/utility and a large pantry. There is also a large boot room off the kitchen. On the first floor are four double bedrooms and a bathroom. Stairs from the first-floor landing give access to the second floor. Vaulted to the roof space, two rooms, that could be converted into additional bedrooms, are accessed off a large landing.

Outside, the house is approached from the rear, with parking off the lane. To the side of the farmhouse is a stone outbuilding, which was formerly a pigsty. The south-facing garden is to the front of the property and overlooks the field, measuring approximately 1.57 acres, which slopes away from the garden. Further parking could be created to the left of the house, subject to the necessary planning permissions.

Located in a tranquil valley, on the eastern banks of the Graig hill, between the historic villages of Grosmont and Skenfrith, in North Monmouthshire, the area is well-known for its beautiful scenery and is popular with walkers.

Nearby attractions include 12th Century Norman castles at Grosmont and Skenfrith, which together with White castle, formed a medieval lordship. The area has fantastic local restaurants and pubs, such as The Bell at Skenfrith, 1861 restaurant and the Angel Inn in Grosmont. The well-regarded Cross Ash primary school is also less than 3 miles away.

The historic market towns of Abergavenny and Monmouth are both less than ten miles away and have a range of independent shops, supermarkets, theatres, cinemas and restaurants. Abergavenny also has a general hospital and a mainline train station.

Council Tax: We have been informed that this property has been placed under council tax band ‘G’.

Services: Mains electric and water. Private drainage, solid fuel Rayburn and wood burning stove. Please note we have not tested the appliances or services.

Telephone & Broadband: Telephone- subject to BT transfer regulations. According to ofcom the following networks are available: Openreach. The speed available is standard. For more information visit: https://checker.ofcom.org.uk/en-gb/broadband-coverage

Please note you should always confirm this by speaking to the specific provider you would like to use. This is for guidance only.


Floorplan for Grosmont, Abergavenny, Monmouthshire
EPC Graph for Grosmont, Abergavenny, Monmouthshire
Book a Property Valuation