Old Road, Bwlch, Brecon - £855,000

bedrooms 5 baths 2 receptions 3
savesaved

THIS PROPERTY IS A MUST SEE! Beautifully renovated throughout, this impressive and spacious home enjoys 1.03 acres of gardens and a separate superbly finished, one-bedroom cottage. Tucked away within a popular village, viewing is highly recommended!

Key Features

  • impressive five bed, Victorian house
  • popular village location
  • superbly renovated and finished
  • packed with character features
  • separate one bed cottage
  • three reception rooms
  • lovely kitchen with AGA
  • 1.03 acres of garden and wooded area
  • parking and garage
  • wonderful family home

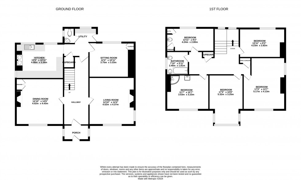
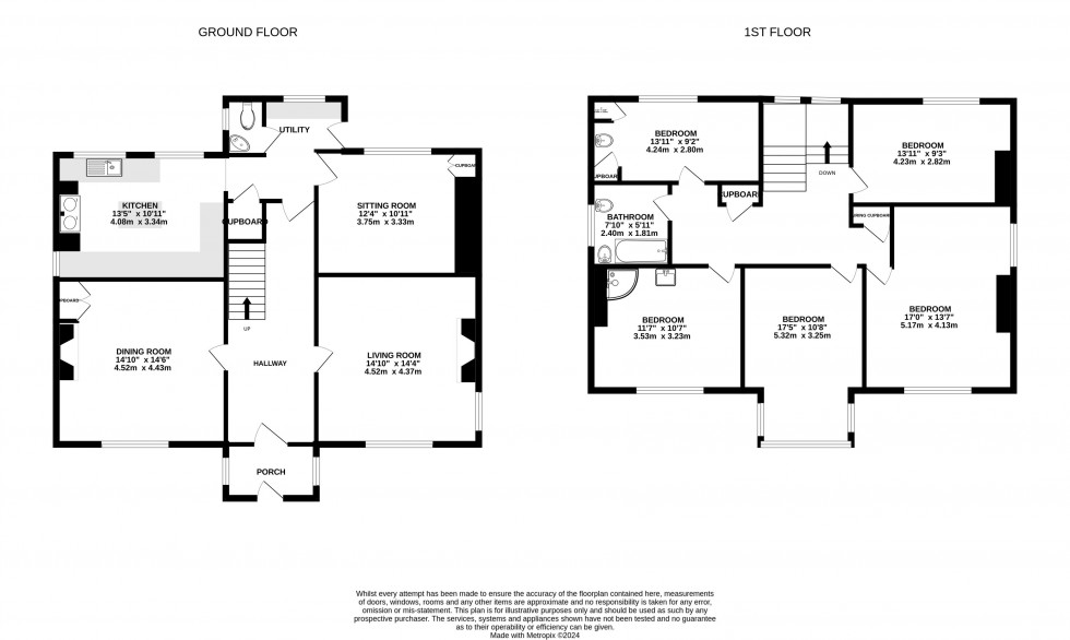
Entering into the property you are greeted by a grand and welcoming entrance hall, boasting an attractive coloured tiled floor, original pitch pine staircase, elegant coving, picture rail and a characterful antique-style radiator. To the left, the formal dining room provides an inviting space for entertaining, while to the right, the living room beckons with its striking marble fireplace, complete with a cozy multi fuel stove—perfect for winter evenings. To the rear, there is a charming sitting room which also enjoys a multi-fuel stove and built-in alcove cupboard providing a retreat for quiet evenings. The kitchen, is both functional and stylish, featuring a range of fitted units and worktops, island, an induction hob, oven, warming drawer, fridge, freezer, dishwasher and microwave. The kitchen also benefits from a traditional oil fired AGA, which not only adds a touch of timeless elegance but also serves as a source of hot water and cooking. Adjacent to the kitchen is a utility area and a convenient cloakroom, adding to the property’s family-friendly appeal. Upstairs, the lovely staircase leads to a spacious landing and five well-proportioned bedrooms. Two bedrooms feature cast iron fireplaces, the master also enjoying a pine floor and wardrobes. One guest bedroom benefits from a shower and wash hand basin and then completing the first floor is a bathroom.

The property’s 1.03 acres of pretty gardens are perfect for those who enjoy outdoor living. The formal front and rear gardens offer lawns, vibrant flower beds and an array of fruit and ornamental trees, including currant bushes, raspberries and vines. A vegetable patch provides the opportunity for home-grown produce, while a variety of patios and pathways create wonderful spaces for alfresco dining and relaxation.

For those with a love of nature, the property also includes a wooded area brimming with a variety of trees, providing an enchanting space for children to explore, build dens and enjoy the great outdoors. There are also wooden stables (5.47m x 3.27m) and a wooden and corrugated iron garage, ideal for storage.

The beautifully finished cottage adds considerable appeal to Wellfield, offering a versatile space for guests, extended family, or even potential holiday letting opportunities which it is currently used for. The open-plan kitchen/living/dining area features a tiled floor, exposed roof timbers and striking stone and brick walls. The multi-fuel stove enhances its rustic charm, while the kitchen itself is equipped with base and wall units, an oven, hob and microwave. The cottage is completed by an attractive shower room and a cozy bedroom. The cottage is being sold lock, stock and barrel. EPC rating- C

Nestled in the heart of Bwlch, a popular village within Bannau Brycheiniog National Park which has a pub and community hall. Situated roughly halfway between Brecon and Crickhowell it is surrounded by glorious countryside with plenty of wonderful walks on your doorstep. The village Llangynidr is a 4 minute drive away and offers a primary school, shop with post office cafe, petrol station and the Brecon & Monmouthshire canal. Llangors is only 4 miles away where there is another primary school. Brecon is 8 miles away which has a wide range of shops and amenities that include a cinema, theatre, leisure centre, library and golf course. It also has several good primary schools, a secondary school, college of further education and Christ College a private boarding school for boys and girls aged 7-18. The nearest train station is in Abergavenny which is 11 miles away.

Council Tax: We have been informed that this property has been placed under council tax band ‘G’.

Services: Mains electricity, water and drainage. Gas central heating as well as an oil fired AGA. Please note we have not tested the appliances, central heating or services.


Floorplan for Bwlch, Brecon, Powys Floorplan for Bwlch, Brecon, Powys
EPC Graph for Bwlch, Brecon, Powys


Book a Property Valuation