, Velindre, Brecon - £580,000

bedrooms 3 baths 1 receptions 2
savesaved

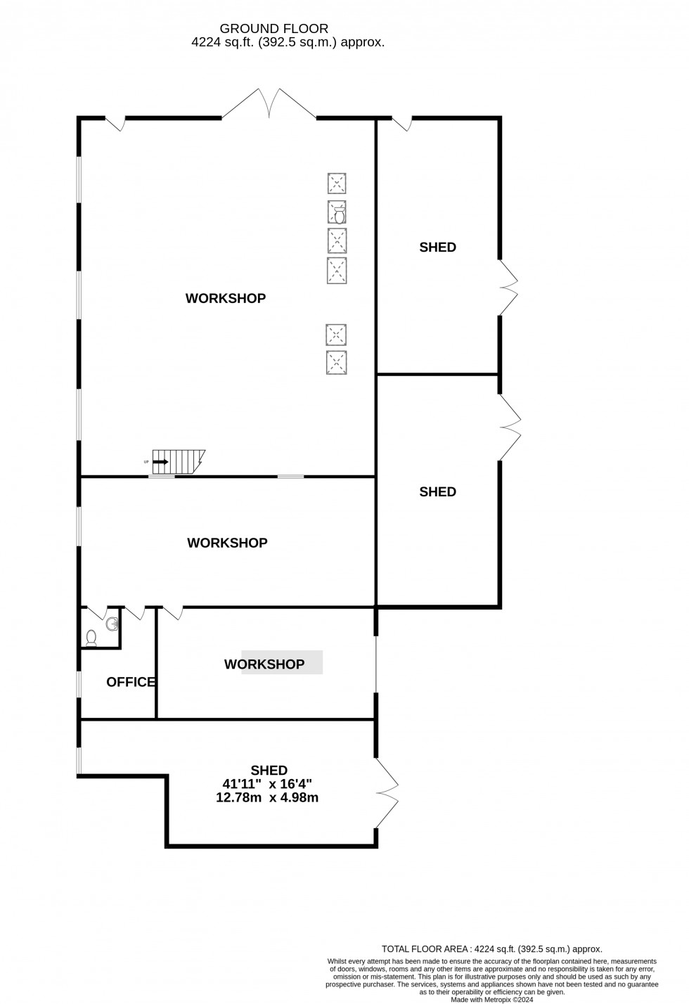
Linden Lea has great development potential. It has a large, light industrial unit ideal for running a business from which also  has planning permission for two houses, an adjoining paddock and a three bed bungalow. 

Key Features

  • Detached Bungalow
  • Three Bedrooms
  • 2.45 Acres
  • Large Light Industrial Unit (4,500 sqft) Suitable For A Variety Of Uses Or Has Planning Permission To Remove & Build Two Houses
  • Plenty Of Parking
  • Popular But Quiet Village Location
  • Paddock Of About 1.75 Acres
  • Kitchen
  • Bathroom
  • Lots Of Potential
  • Freehold

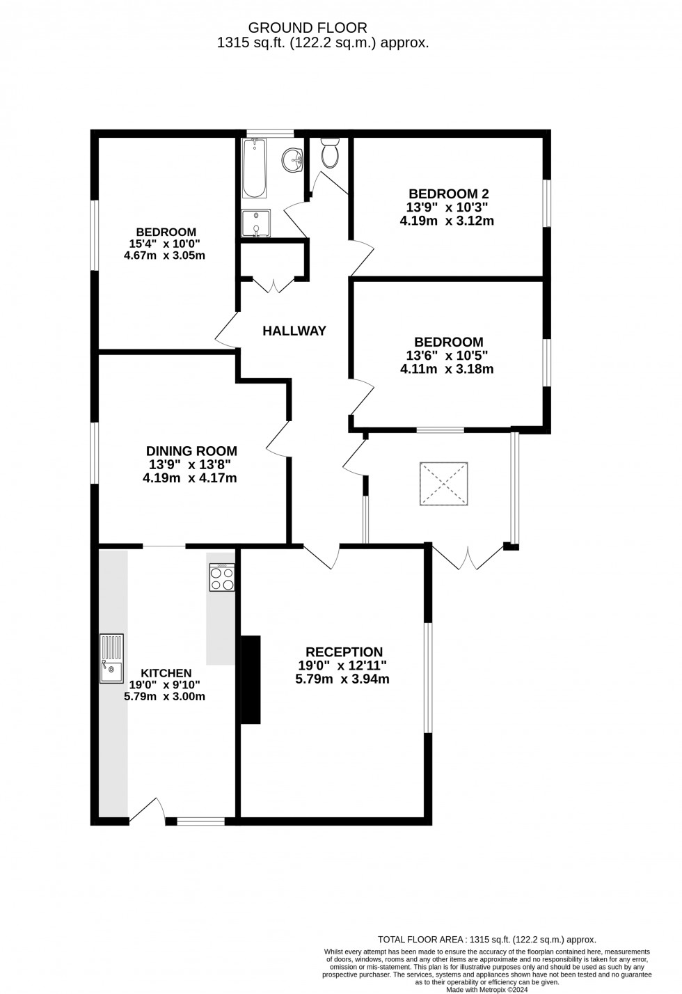
Linden Lea offers great potential to live and work from home. Sitting on approx. 2.45 acres of garden and paddock, the detached bungalow comprises of a large porch, entrance hall, living room with fireplace, kitchen with plenty of cupboard space and a dining room off. It also has three double bedrooms, a bathroom and separate toilet. Outside a gated driveway leads you to a parking area. The gardens are mainly to the front and are lawned with shrub and flower borders. A paved path leads around to the rear of the property which is made up of lawn, further shrub borders and a good-sized existing vegetable area. A gate from the yard leads to a paddock which is gently sloping and approx. 1.75 acres, ideal for grazing animals. Adjacent to the bungalow there is a large, light industrial unit which is divided into one large and two smaller workshops, three storage areas, an office and a toilet. This outbuilding would suit a variety of uses such as a workshop and storage. If not needed, outline planning is in place to remove and build two houses. The property therefore has lots of options and potential.

Felindre is a lovely, rural community within the Brecon Beacons National Park only 5 miles from Hay-On-Wye, a historic market town which lies on the Welsh border and is famous for its books and literary festival. It has a good range of shops and amenities such as a supermarket, doctor's and dental surgeries, primary school, library, pubs, restaurants and post office. The larger town of Brecon is 11 miles away which has a further range of shops and amenities. The nearest High School is Gwernyfed which is 2 miles down the road.

Council Tax: We have been informed that this property has been placed under council tax band ‘F’.


Floorplan for Velindre, Brecon, Powys Floorplan for Velindre, Brecon, Powys
EPC Graph for Velindre, Brecon, Powys


Book a Property Valuation