Maeshendre, Cilmery, Builth Wells - £350,000

bedrooms 3 baths 2 receptions 2
savesaved

***BRAND NEW HOME IN A VILLAGE POSITION!!!*** This fantastic family home located centrally in the village of Cilmery is superbly proportioned and will provide modern, stylish accommodation with private gardens, off-road parking AND an integral single garage!

Key Features

  • ***BRAND NEW DETACHED ENERGY EFFICIENT FAMILY HOME***
  • 10 year NHBC warranty
  • Select development of only six dwellings
  • Central village location in the heart of glorious Mid-Wales
  • Three good-sized bedrooms with en-suite to master
  • Renowned local builder
  • Views over stunning Mid-Wales countryside
  • Plenty of off road parking and integral garage
  • Viewings are highly encouraged to appreciate size and quality

A fantastic opportunity to purchase a brand new home on a select development in a central position within Cilmery, just a couple of miles from the thriving market town of Builth Wells!

These fine, energy efficient properties are being constructed by established local builder Andrew M Davies, Builders and Development Contractors, who have an excellent reputation in the area and will have the benefit of an NHBC 10 year warranty, LPG fired central heating and uPVC windows and fascias. This property will be finished to the developer’s usual high standard to include quality fixtures and fittings throughout.

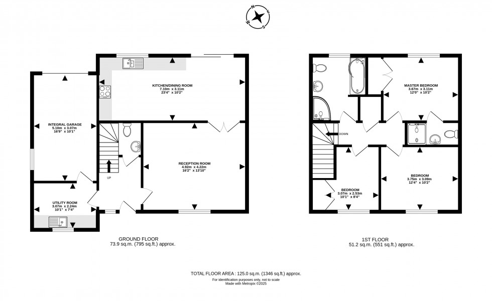
4 Maeshendre is the premier home on this select development of ultimately six properties in total. This fantastic home enjoys a canopy porch to protect the front door from the elements, opening into a large entrance hallway with downstairs WC under the stairs. To the front of the property is the main reception room - a lovely space to relax, and to the rear is an impressive kitchen/dining room which spans the width of the house. Here there is ample space for food preparation, cooking and dining, and the benefit of sliding doors to the rear garden. The ground floor is complemented by a useful utility room with door leading to the integral garage.

The first floor will consist of three good-sized bedrooms, with the master enjoying an en-suite shower room. The second and third bedrooms are located to the front of the property, with far-reaching views across the A483 to the Mid-Wales countryside a particular highlight. The family bathroom will have a modern suite of bath, separate corner shower cubicle, low flush WC and wash hand basin.

Externally, the property will benefit from private front and rear gardens, being nicely set back from the road. The front garden will be laid mainly to lawn, and the rear garden will also be a pleasant lawned area. Adjacent to the garden, there will be a driveway leading up to an integral single garage.

***Please note carpets are not included in the price, although kitchen, bathroom and en-suite flooring are. Viewings are highly recommended on these high quality, energy efficient homes!

***Please note the internal photographs used in this advert are from 1 Maeshendre, this property will be completed to the same exacting standards.

Telephone & Broadband: Telephone- subject to BT transfer regulations. According to comparethemarket.com the property has a broadband speed of: 57.98 Mbps (average speed of Mbps).

Please note you should always confirm this by speaking to the specific provider you would like to use. This is for guidance only.

Cilmery is located just over two miles from Builth Wells and enjoys a charming Public House, known for its good food and great atmosphere and has the benefit of good transport links with a Heart of Wales railway line stopping in the village and giving access to Swansea and Shrewsbury on a daily basis. Just a short two and a bit mile drive to the East brings you to the thriving market town of Builth Wells, which has a range of amenities and facilities including Primary and Secondary Schools, a cinema, leisure centre, cricket, rugby, football and golf clubs. It is also home to the internationally famous Royal Welsh Show which is the largest agricultural show in Europe. The town has good transport links, is on a bus route between Cardiff and North Wales and is also served by Builth Road Railway Station on the Heart of Wales Line. Situated within the Wye Valley, an area of natural beauty and close to the Elan Valley at Rhayader, it is well-known as a walker’s paradise whilst the Red Kite feeding centre at Gigrin Farm offers a truly unique experience to see the rare and magnificent birds on a daily basis.


Floorplan for Cilmery, Builth Wells, Powys
Book a Property Valuation