, Cathedine, Brecon - £500,000

bedrooms 3 baths 2 receptions 1
savesaved

A superb, three bed barn conversion enjoying fabulous countryside views, parking and gardens.

Key Features

  • detached barn conversion
  • superbly finished and ready to move straight in to
  • open plan kitchen/living/dining room
  • cloakroom, bathroom and en-suite
  • stunning countryside views
  • parking
  • select courtyard development just outside the village of Bwlch
  • gardens
  • three bedrooms
  • office/4th bedroom

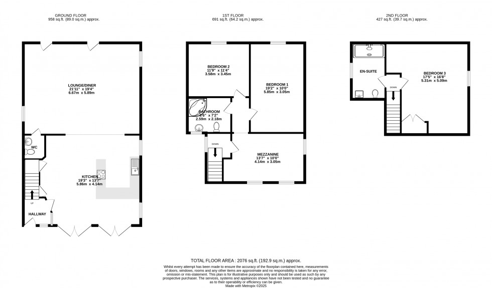
Enjoying a stunning countryside setting, this superb detached barn conversion combines character, space, and style, perfect for families or those looking to entertain. Attractively presented, the ground floor features a spacious open-plan layout with oak and tiled flooring, a well-equipped kitchen offering a range of cupboard space, a breakfast bar and integrated oven and hob. Two sets of glazed patio doors flood space with natural light and open onto a paved patio creating seamless indoor-outdoor living. A cloakroom and rear hall complete the ground floor. Upstairs, there are three bedrooms, including a striking mezzanine room that overlooks the kitchen and boasts a full-length window capturing far-reaching views, ideal as a home office, additional living space or extra bedroom if required. There is also a family bathroom on this level. The master bedroom occupies the top floor and is a delightful retreat featuring exposed roof timbers, built-in storage and an en-suite shower room. Outside, the enclosed paved patio off the kitchen provides a low-maintenance space for al fresco dining and relaxing and an additional grassed garden area, backing onto open farmland, offers further outdoor enjoyment with panoramic rural views.

Pendre Courtyard is a former farm that has been superbly developed and converted into six dwellings facing an attractive courtyard. It is situated in some glorious countryside 1 mile outside the popular village of Bwlch. It is also 3 miles from Llangors, 6.5 miles from Crickhowell and 9 miles from Brecon. Crickhowell enjoys a town centre full of independent shops creating a thriving high street and community spirit. There are also primary and secondary schools, doctor’s surgery and library. Brecon is a traditional market town, the centre of the Brecon Beacons National Park. It provides a wider range of shops and amenities which include a cinema, theatre, leisure centre, library and golf course. It also has several good primary schools, a secondary school, college of further education and Christ College a private boarding school for boys and girls aged 7-18.

Services: Mains electricity and water. Private drainage which is shared with the neighbouring properties. It is a Klargester septic tank. LPG gas central heating. Please note we have not tested the appliances, central heating or services.

Council Tax: We have been informed that this property has been placed under council tax band ‘G’.

Please note: The drive, courtyard, parking area and septic tank are shared with the neighbouring properties. Each property pays £70 per month towards communal expeses plus an element towards a sinking fund for extra items/expenditure. All matters are managed by the residents of Pendre Courtyard.


Floorplan for Cathedine, Brecon, Powys
EPC Graph for Cathedine, Brecon, Powys


Book a Property Valuation