School Road, Talgarth, Brecon - £335,000

bedrooms 3 baths 3 receptions 2
savesaved

Situated in a popular village location is this great, three bed, former school masters house packed with character.

Key Features

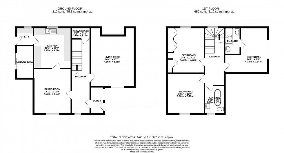
  • An Attractive Three Bed Former School Master’s House
  • Detached
  • Spacious Accommodation
  • Lots Of Features
  • Two Reception Rooms
  • Kitchen/Breakfast Room
  • Utility
  • Garden Room
  • Downstairs Shower Room
  • Three Double Bedrooms
  • Bathroom With Cast Iron Roll Top Bath
  • En-suite Shower Room
  • Gardens With Greenhouse & Shed
  • Close To Talgarth Church & Walking Distance To The Town Centre
  • Built In 1875
  • Freehold

This is a fine-looking former school house with lots of character and spacious accommodation. Its features include a lovely oak front door, leaded and coloured glass screen, superb patterned tiled floor in the hall, some original fireplaces, coving and dressed stone front elevation. It was built in 1875 and the accommodation downstairs comprises of two good sized living rooms, a shower room, kitchen/breakfast room, utility and garden room. Upstairs are three double bedrooms, one with an en-suite shower room and another with built in wardrobes. The family bathroom completes the upstairs accommodation which has a cast iron roll top bath. Outside the front garden has rose beds, shrubs and a wooden greenhouse with a vine. The rear garden is paved, graveled and has a patio, boarders, greenhouse and two sheds.

School house is located in an old established area next to the church and former primary school which has recently been renovated for Black Mountains College and the wider community. Talgarth is a traditional market town, nestled beneath the Black Mountains and within the Brecon Beacons National Park. It enjoys a range of shops, pubs, hairdressers, doctor’s surgery, primary school and fully restored 18th century working mill with bakery & riverside café. The area boasts some outstanding scenery with two natural reserves nearby and is popular with tourists and outdoor pursuit enthusiasts who can enjoy activities such as hiking, mountain biking, horse riding, canoeing & gliding.

Council Tax: We have been informed that this property has been placed under council tax band ‘F’.


Floorplan for Talgarth, Brecon, Powys
EPC Graph for Talgarth, Brecon, Powys
Book a Property Valuation