Adelaide Gardens, Brecon - £260,000

bedrooms 3 baths 1 receptions 1
savesaved

Ticking all the boxes is the lovely, well presented, three bed family home in a popular location. Enjoying spacious accommodation, parking and a good size level garden, viewing is highly recommended.

Key Features

  • three bed family home
  • popular residential area within easy access of town centre
  • parking
  • good size, level, easily managed garden
  • attractive kitchen/breakfast room
  • good size living room
  • conservatory
  • cloakroom and bathroom
  • freehold

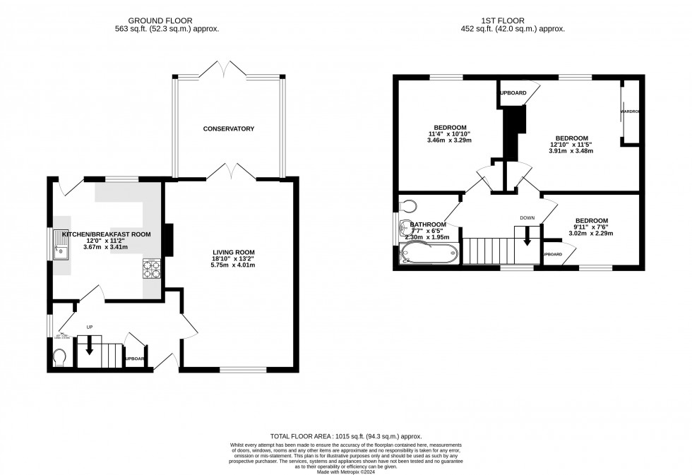
This great, three bed, semi-detached house is an ideal family home situated in a popular residential area. On the ground floor there is an entrance hall, convenient cloakroom and kitchen/breakfast room which has plenty of cupboard space, a breakfast bar, integrated oven and hob, plumbing for a washing machine and door to the rear. There is also a good size living/dining room and conservatory. Upstairs there are three bedrooms and a family bathroom. The property also benefits from oak internal doors, a new roof, uPVC double glazing and gas central heating. Outside at the front of the property there is a driveway providing parking for two cars. The rear garden is a good size and level made up of a paved patio areas, lawn, shrub borders and a garden store.

Adelaide Gardens is a popular, established residential area which is away from the main road but within easy access of the town centre. Brecon is a traditional market town, the centre of the Brecon Beacons National Park. Surrounded by wonderful countryside it has a wide range of shops and amenities which include a cinema, theatre, leisure centre, library and golf course. It also has several good primary schools, a secondary school, college of further education and Christ College a private boarding school for boys and girls aged 7-18. With good access links Cardiff, Swansea and Hereford are all an hour’s drive and the nearest train station is in Abergavenny which is 20 miles away.

Council Tax: We have been informed that this property has been placed under council tax band ‘C’.

Services: All mains services. Gas central heating. Please note we have not tested the appliances, central heating or services.


Floorplan for Adelaide Gardens, Brecon, Powys
EPC Graph for Adelaide Gardens, Brecon, Powys
Book a Property Valuation