, Llandegley, Llandrindod Wells - £650,000

bedrooms 8 baths 2 receptions 3
savesaved

Burton House is a striking and locally cherished Grade II Listed residence dating back to 1706, offering over 340 sq.m of elegant character accommodation. Set in approx. 1 acre with a walled garden, paddock, and rich history, this rare gem blends grandeur with smallholding potential!

Key Features

  • Locally renowned Grade II Listed residence dating back to 1706, steeped in rich history and former roles as a post office, inn, and farmhouse
  • Set in approx. 1 acre with a registered paddock (with field number), perfect for smallholding, animals, or self-sufficiency
  • Discreetly positioned just off the A44 in Llandegley, with vehicular access, private parking, and next to tranquil St Tecla’s Church
  • Elegant period features throughout, including fireplaces, slate and timber floors, original bread oven, and hidden stone bath
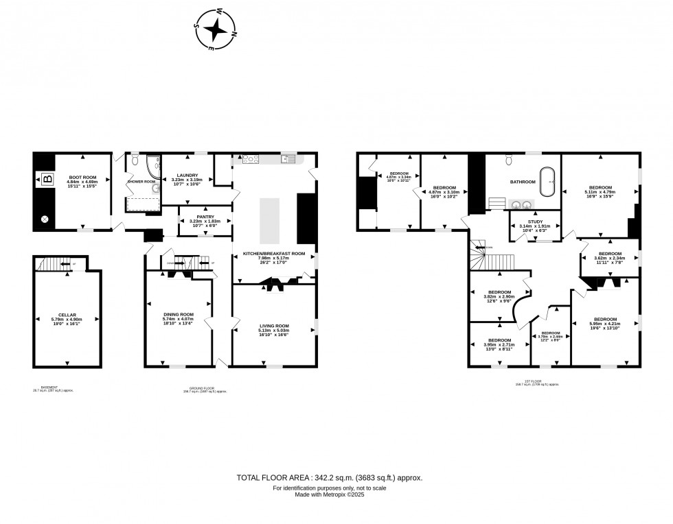
  • 342 sq. m of internal space spread over two grand floors, plus a cellar ideal for storage or a wine room
  • Expansive farmhouse kitchen nearly 8m long with adjoining pantry, pan store, laundry, and character-filled boot room
  • Up to 8 bedrooms, ideal for large families, guests, or multi-generational living - with study and home office space included
  • Fibre broadband connected - ready for remote work, streaming, or running a home-based business
  • Charming walled courtyard garden with original well and mature planting – a serene outdoor retreat bursting with seasonal colour
  • Council tax band – F (2025-6 £3,135.78)

Burton House – Historic Elegance and Smallholding Potential in Rural Mid Wales!

Discreetly tucked just off the A44 in the quiet village of Llandegley, and neighbouring the peaceful St Tecla’s Church, Burton House is a property of rare heritage and local renown. Set within approximately 1 acre of well-tended grounds, this handsome home offers a wonderful balance of grand, characterful accommodation and practical smallholding potential - complete with vehicular access and parking, fibre broadband, and a registered paddock with field number.

Famous within the area for its longstanding presence and rich history, the oldest part of Burton House dates back to 1706, with later additions expanding its footprint into the impressive and substantial residence it is today. Over the centuries, the house has served the community in a variety of roles - including as a farmhouse, post office, inn, and lodging house for travellers - each chapter adding to the depth of its character and charm.

Internally, the accommodation extends to around 342 square metres, arranged across two grand floors, with the addition of a useful cellar accessed from the central entrance hallway. Upon entering, the home immediately reveals its Georgian proportions and timeless appeal: wide hallways, tall ceilings, and generously sized rooms, many of which retain original features such as fireplaces, and timber or slate floors. To the front, two principal reception rooms offer elegant living and entertaining spaces - the living room and formal dining room are both light-filled and beautifully appointed. At the rear, the expansive farmhouse kitchen - measuring nearly 8 metres in length - forms the warm, social heart of the home, offering ample space for informal dining and everyday family life. Adjoining the kitchen are a traditional pantry and pan store, as well as a practical laundry/utility room. At the far end of the ground floor, a charming boot room houses the pellet boiler and retains period features such as an original bread oven. A ground floor shower room completes the accommodation on this level and conceals a wonderful hidden feature - an original stone bath, still in place beneath a timber cover.

Upstairs, the accommodation continues to impress. A large central landing gives access to up to eight bedrooms, offering remarkable versatility for family living, multigenerational households, or guest accommodation. Several of the bedrooms are generously proportioned doubles, while others lend themselves well as nurseries, dressing rooms, or studies. There is also a spacious family bathroom with a roll-top, claw-footed bath, and a dedicated home office or study - ideal for those working remotely or seeking a quiet creative space. One of the bedrooms sits directly above the boot room and originally had a staircase connecting the two; planning was previously granted to reinstate this, which could offer the potential to create a self-contained annexe or holiday let.

Externally, Burton House truly shines. To the rear lies a wonderfully private walled courtyard garden - a tranquil and sheltered haven, ideal for outdoor living and entertaining. Filled with flowering trees, traditional planting, and even the original well, this beautifully mature space bursts with colour and charm throughout the seasons. Beyond the garden lies a registered paddock with its own field number, offering excellent potential for animal keeping, a smallholding, or a self-sufficient lifestyle.

With vehicular access and parking directly off the A44, this smallholding setup is as practical as it is picturesque. Burton House is a locally cherished landmark, known for its history, scale, and enduring charm. With a peaceful village setting, fibre broadband already in place, and exceptional space both inside and out, this is a truly rare opportunity to acquire a distinctive home with heritage, character, and countryside appeal in the heart of Mid Wales.

Telephone & Broadband: Telephone- subject to BT transfer regulations. According to comparethemarket.com the property has a broadband speed of: 1600 Mbps (average speed of Mbps). We have been advised that the vendor has had full fibre broadband installed at the property.

Please note you should always confirm this by speaking to the specific provider you would like to use. This is for guidance only.

Llandegley is a picturesque rural community nestled in the heart of Mid Wales, steeped in folklore and local heritage. Best known for the nearby Llandegley Rocks - a striking summit on the edge of the Radnor Forest - the village offers sweeping views, rich natural beauty, and a deep historical legacy. The village takes its name from the ancient church of St Tecla, a saint once revered for her healing powers, particularly in treating the "falling sickness" (thought to be epilepsy). Pilgrims would travel to Llandegley seeking a cure, following a ritual involving sacred wells, symbolic offerings, and a night spent beneath the church’s communion table. Today, Llandegley remains a peaceful and timeless hamlet, just 1.5 miles from Penybont, which provides practical amenities including a garage and the well-regarded Severn Arms pub. The nearby spa town of Llandrindod Wells, less than eight miles away, offers a wider range of educational, leisure, and shopping facilities - making Llandegley the perfect blend of tranquillity and convenience in rural Powys.


Floorplan for Llandegley, Llandrindod Wells, Powys


Book a Property Valuation