, Llanhamlach, Brecon - £390,000

bedrooms 3 baths 1 receptions 1
savesaved

In a quiet spot and enjoying wonderful countryside views is this delightful, character, three bed semi.

Key Features

  • three bedrooms
  • semi-detached period home
  • delightful location surrounded by glorious countryside
  • good size living/dining room with open fire
  • kitchen
  • cloakroom and bathroom
  • easily managed gardens
  • no chain
  • leased large store/garage
  • shared parking available

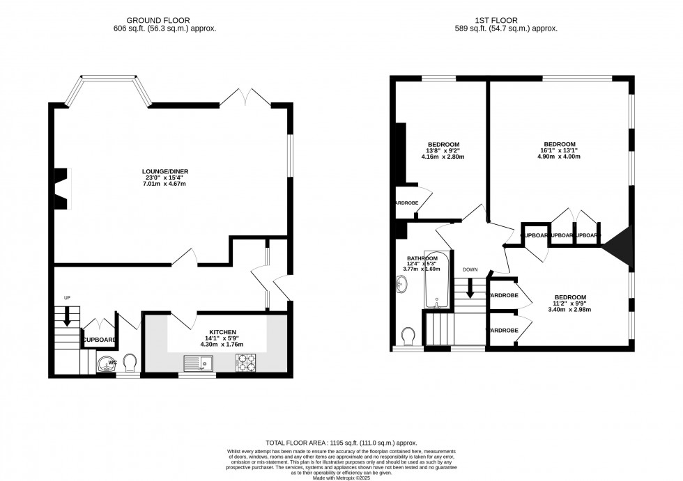
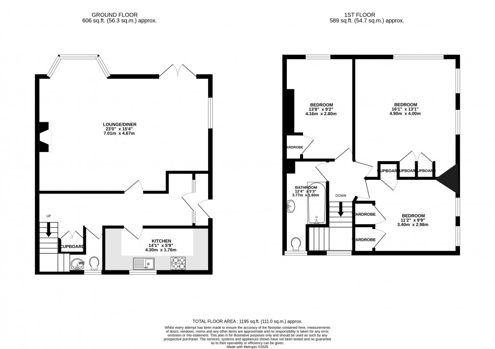
This charming period home enjoys a lovely setting with wonderful views over the surrounding countryside. On the ground floor, the entrance hall leads into a spacious living room, filled with natural light thanks to its bay window and patio doors, both of which make the most of the pretty outlook to the Usk river, canal and Brecon Beacons. An open fire adds a cosy focal point for winter evenings. The kitchen offers plenty of cupboard space and comes fitted with an integrated gas hob, oven, dishwasher, fridge and washing machine. A handy cloakroom completes the ground floor. Upstairs, there are three bedrooms, all with built-in storage, along with a family bathroom. The property boasts high ceilings throughout. Outside, there is a gated paved courtyard with two useful stone stores. A stone archway leads to the rear garden, which backs onto farmland and is a real sun trap, perfect for sitting and soaking up the views. Its easily managed and is made up of paved seating areas, a lawn and a feature pond. The property also benefits from the right to park in a shared parking area with the neighbouring property and church, as well as a leased large store/garage which has 53 years remaining.

The property is located next to the church, tucked away from the main road A40 and near Peterstone Court. The hamlet of Llanhamlach is just 3.5 miles east of Brecon and surrounded by beautiful countryside, it offers a peaceful setting while still being within easy reach of amenities. Brecon is a traditional market town, the centre of the Brecon Beacons National Park. Surrounded by wonderful countryside it has a wide range of shops and amenities which include a cinema, theatre, leisure centre, library and golf course. It also has several good primary schools, a secondary school, college of further education and Christ College a private boarding school for boys and girls aged 7-18. With good access links Cardiff, Swansea and Hereford are all an hour’s drive and the nearest train station is in Abergavenny which is 20 miles away.

Services: Mains electricity and water. Private drainage (shared with neighbour). Gas central heating. Please note we have not tested the appliances, central heating or services.

Council Tax: We have been informed that this property has been placed under council tax band ‘E’.


Floorplan for Llanhamlach, Brecon, Powys
EPC Graph for Llanhamlach, Brecon, Powys
Book a Property Valuation