Woodlands Avenue, Talgarth, Brecon - £265,000

bedrooms 3 baths 2 receptions 1
savesaved

In a quiet residential area is this great, three bed, semi-detached house. An ideal family home it benefits from parking, a garage & front and rear gardens.

Key Features

  • Three Bedrooms
  • Semi-Detached House
  • Great Family Home
  • Ready To Move Straight Into
  • Popular Residential Area
  • Parking & Garage
  • Living/Dining Room
  • Kitchen
  • Cloakroom & Bathroom
  • Conservatory
  • Utility
  • Gas Central Heating
  • Freehold

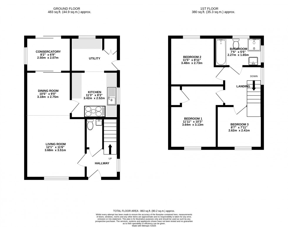
This great semi-detached house is an ideal family home in a popular location. Attractively finished and ready to move straight into, it ticks all the boxes. On the ground floor accommodation comprises of an entrance hall, convenient cloakroom and good size living/dining room. The kitchen is fitted with a range of attractive base and wall units, a range cooker. There is also a handy utility room with plumbing for a washing machine and dishwasher and a conservatory. Upstairs, there are three bedrooms and a bathroom with bath and separate shower. Outside at the front garden there is a lawned area and driveway leading to the garage. The rear garden is level and made up of a patio area, lawn and raised boarders. The property also benefits from gas central heating and uPVC double glazing.

The property is situated in a popular residential area within the charming market town of Talgarth. Known as the “Gateway to the Black Mountains, Talgarth is nestled within the Brecon Beacons National Park and offers a welcoming community, scenic surroundings and a range of local amenities including independent shops, cafés, a post office, doctors’ surgery, pharmacy and primary school. Talgarth is well regarded for its beautiful countryside walks, with the nearby Pwll-y-Wrach Nature Reserve and River Ennig providing peaceful spots to explore. The town is also home to the restored Talgarth Mill, a working watermill with a popular riverside café. For commuters, Talgarth enjoys excellent road links to the surrounding towns of Brecon, Hay-on-Wye and Abergavenny, while the A470 provides easy access further afield. The area is perfect for outdoor enthusiasts, with endless opportunities for hiking, cycling and other country pursuits right on the doorstep.

Council Tax: We have been informed that this property has been placed under council tax band ‘D’.


Floorplan for Talgarth, Brecon, Powys
EPC Graph for Talgarth, Brecon, Powys
Book a Property Valuation