Lansdown Road, Abergavenny - £775,000

bedrooms 6 baths 3 receptions 3
savesaved

In a popular position, a substantial, detached bungalow boasting a colonial style with characterful features. It occupies a generous plot with plenty of parking, a garage and one bedroom annexe at the rear.

Key Features

  • Five Bedroom Detached Bungalow
  • One Bedroom Annexe
  • Large, Level Gardens With Parking & Garage
  • Two Reception Rooms & Study
  • Kitchen/Diner & Two Shower Rooms
  • Popular & Quiet Location With Views

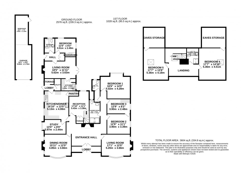
Boasting a wealth of original character features, this substantial detached bungalow offers versatile and generous accommodation, making it ideal for a growing or multi-generational family. The property retains many attractive period details including wooden flooring, bay windows, original fireplaces and high ceilings, all of which add charm and elegance throughout. While there is scope for modernisation, the home is perfectly liveable and well-maintained.

The accommodation begins with a large and welcoming entrance hall with adjoining porch, setting the tone for the space within. To the front of the property are two generous reception rooms overlooking the front garden, along with a separate study. The kitchen/diner provides a sociable family space and is complemented by a small utility area and inner hallway. There are three bedrooms on the ground floor, together with a shower room and separate WC. Stairs rise to the first floor where a spacious landing leads to two further bedrooms and an additional shower room.

A particular highlight is the self-contained annexe, ideal for a dependent relative, guests or potential short-term letting. The annexe comprises of an entrance hall, living room, kitchen, bathroom and a double bedroom.

The gardens are a standout feature of the property. Set centrally within its plot, the bungalow enjoys ample parking to the front along with access to a garage/workshop. The rear garden is well established and attractively presented, featuring a large lawn, patio seating area with wooden pergola, and well-stocked borders, perfect for both relaxation and entertaining.

Lansdown Road is a popular residential area of Abergavenny. Enjoying a leafy feel and with walking distance of the town its popular with families and those looking for easy access into town. The historic market town of Abergavenny is affectionately known as The Gateway to Wales, with the beautiful Brecon Beacons National Park on your doorstep. The town has a range of local amenities such as independent shops, supermarkets, restaurants, hotels, a theatre, cinema, general hospital, primary and secondary schools and a mainline train station. A celebrated annual food festival entices national and international visitors every September, together with cycling, walking, music and art events throughout the year. The town and surrounding area is well known for its renowned gastropubs and restaurants. The town has good road links towards Hereford, Brecon, Swansea, Bristol, Newport and Cardiff via A465, A40 and A4042 trunk roads.

Council Tax: We have been informed that this property has been placed under council tax band ‘H and B’.

Services: All mains services. Please note we have not tested the appliances, central heating or services.

Telephone & Broadband: Telephone- subject to BT transfer regulations. According to ofcom the following networks are available: openreach and Ogi. The speeds available are standard, superfast and ultrafast. For more information visit: https://checker.ofcom.org.uk/en-gb/broadband-coverage

Please note you should always confirm this by speaking to the specific provider you would like to use. This is for guidance only.


Floorplan for Lansdown Road, Abergavenny, Monmouthshire
EPC Graph for Lansdown Road, Abergavenny, Monmouthshire


Book a Property Valuation