Abercynrig, Llanfrynach, Brecon - £650,000

bedrooms 4 baths 2 receptions 2
savesaved

A spacious, Grade II listed, detached home is situated in a wonderful spot and enjoys delightful gardens, parking, garage and outbuilding/workshop.

Key Features

  • four bedrooms
  • detached house
  • character Grade II listed home
  • wonderful family home
  • superb location surrounded by glorious countryside
  • parking and garage
  • workshop and stone garden store
  • wonderful lawned gardens
  • river views
  • two large reception rooms
  • no chain
  • kitchen/diner
  • bathroom and shower room

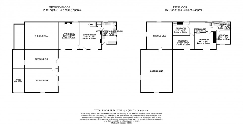
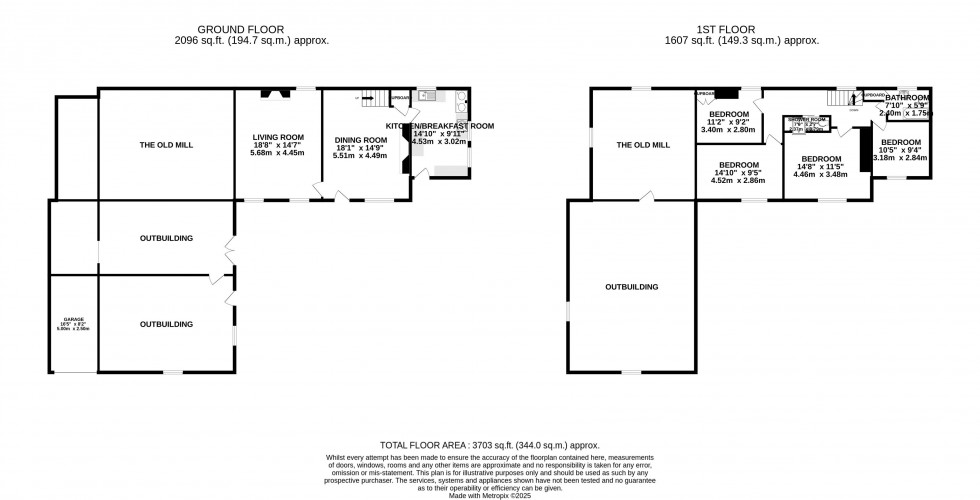
Steeped in history and full of charm, The Mill is a former water-powered corn mill and house dating back to the early 19th Century. This wonderful and spacious character home offers a rare opportunity to create something truly special, combining period features, generous living space and a magical setting on the banks of the River Afon Cynrig. On the ground floor there is a kitchen/breakfast room with tiled floor, a range of base and wall units, integrated oven and hob and an oil-fired AGA. The central dining room is a good size and enjoys exposed beams and an inglenook fireplace with wood-burning stove, creating an inviting space to gather for family meals. There is also a door to the front and stairs to the first floor. Adjacent to the dining room, the living room is another generous space, featuring a second wood-burning stove and parquet flooring. Upstairs, there are four bedrooms, a family bathroom and a separate shower room. The property offers scope to improve, allowing you to put your own stamp on and with no onward chain, viewing is highly recommended.

Outside, the setting is a delightful oasis. Accessed via a private road shared with the neighbour, a gated parking area welcomes you home, with a charming curved cobbled entrance leading to the house and workshop. The gardens are a true treat, with lawns rolling gently down to the river’s edge, framed by a variety of established shrubs, flower borders and mature trees. There are also the remains of an old stone bridge, adding a touch of romance and history to the landscape, as well as a peaceful wooded area teeming with wildlife. Practicality meets charm with a greenhouse, a substantial stone outbuilding (5.57m x 4.64m) with vaulted ceiling, power, lighting, plumbing and a toilet which is ideal as a utility space or for creative projects. Attached to the house is a spacious store/workshop (5.37m x 4.08m and 5.50m x 4.79m) with overhead storage, alongside a garage (4.65m x 2.32m) with a metal up-and-over door.

The property is situated at the end of a private road just outside the village of Llanfrynach. Llanfrynach itself, is a charming and sought-after village nestled within the Brecon Beacons National Park, surrounded by breathtaking countryside and a wealth of outdoor opportunities. This picturesque area is perfect for those who enjoy walking, cycling and horse riding, with scenic routes right on the doorstep. The nearby Monmouthshire & Brecon Canal and Llangorse Lake are also popular spots for leisurely walks and water sports. The traditional market town of Brecon is just a few miles away and provides a wide range of amenities. Here, you’ll find independent shops, supermarkets, cafés, restaurants, a theatre, cinema, leisure centre and excellent schooling options including the well-regarded Christ College. For those needing to travel further afield, there are good road links with the A40 and A470 providing easy access to Abergavenny, Hereford and Cardiff, making Llanfrynach ideal for both peaceful rural living and convenient commuting.

Council Tax: We have been informed that this property has been placed under council tax band ‘F’.

Services: Mains electricity. Private spring water and private drainage. Electric heating. Oil fired AGA. Please note we have not tested the appliances, central heating or services.


Floorplan for Llanfrynach, Brecon, Powys
EPC Graph for Llanfrynach, Brecon, Powys
Book a Property Valuation