, Disserth, Builth Wells - £625,000

bedrooms 4 baths 2 receptions 2
savesaved

A striking country home with approx. 7 acres, stunning panoramic views, and versatile barns with conversion potential. Thoughtfully extended to include a superb reception room with wraparound glazing and woodburning stove, plus stables and a hay barn close to the house, making it an ideal smallholding or equestrian opportunity!

Key Features

  • Striking country home with approx. 7 acres of gardens, paddocks, and fields, in a peaceful rural position between Builth Wells and Llandrindod Wells
  • Superb reception extension with extensive glazing, panoramic countryside views, and a cosy woodburning stove
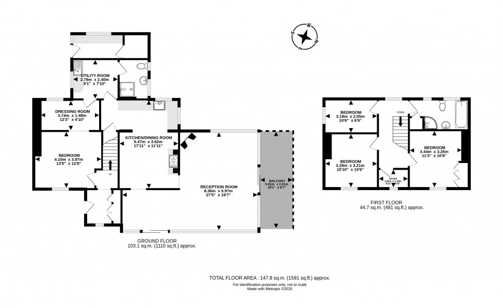
  • Spacious farmhouse-style kitchen with central island and Belling range cooker, forming the sociable heart of the home
  • Flexible ground-floor layout including a utility, shower room, and a large double bedroom with walk-in dressing room
  • Three further bedrooms upstairs, plus a compact office and family bathroom with bath and separate shower
  • Traditional stone barns and outbuildings, including one partially converted with planning permission for a full dwelling (Powys CC Ref: 18/0448/FUL)
  • Large mature gardens with raised deck seating area, stream, and woodland – perfect for enjoying the setting
  • Versatile land extending to approx. 7 acres, ideal for smallholding, equestrian use, or simply a private countryside lifestyle
  • Council tax band - E (2025-6 £2,646.85)
  • Energy performance certificate - TBC

Cwmamliw is a striking country home with approximately 7 acres of land, set in a peaceful rural position yet lying roughly equidistant between Builth Wells and Llandrindod Wells. Perfectly placed for everyday conveniences while enjoying the tranquillity of the countryside, it offers the space, setting, and lifestyle so many buyers dream of. With stables and a hay barn situated within close proximity to the house, it also presents an excellent equestrian opportunity.

The property has been thoughtfully extended by the current owners, and the heart of the home is undoubtedly the stunning reception room added as part of this. Wrapping around the house with extensive glazing, it showcases panoramic views across gardens, fields, and rolling hills. Bright and airy in summer yet wonderfully cosy in winter, thanks to a woodburning stove tucked in the corner, it is a room designed for gathering, entertaining, or simply soaking up the scenery.

At its centre, the home retains its farmhouse character, with a spacious kitchen fitted with ample units, a central island, and a Belling range-style cooker, creating a warm and sociable hub. The kitchen flows effortlessly into the reception extension, as well as a series of other practical ground-floor spaces, including a utility room, shower room, and a large double bedroom with walk-in dressing room – perfect for guests or multigenerational living. A rear entrance hall with storeroom provides a practical everyday link to the outdoors.

Upstairs, there are two further double bedrooms and a generous single, many of which enjoy wonderful far-reaching views over the surrounding countryside – a beautiful outlook to wake up to. A compact office makes home working easy, while a family bathroom with both bath and separate shower completes the first floor.

Beyond the house, a collection of traditional stone barns and useful outbuildings add versatility. One barn, which already benefits from planning permission for conversion (Powys County Council, Ref: 18/0448/FUL), has been partially converted to provide a generous ground-floor space currently used as storage, with an upstairs element ready to become a bedroom or elevated reception area enjoying the views. At the top of the privately owned lane leading to the property, a large area of hardstanding sits directly outside the house, flanked by numerous practical outbuildings including four large 12ft x 12ft stables, an open barn with garage area, a hay store, and log storage. Further down the track, additional facilities include a large sheep shed and two further stables, offering excellent scope for equestrian or smallholding use. The house itself is surrounded by mature gardens featuring a productive orchard, vegetable patch, and chicken pen, alongside lawns and a raised decked seating area perfectly positioned to capture the views. A meandering stream runs through the woodland beyond, and the land is naturally stream-fed. In total, the grounds extend to approximately 7 acres, divided into fields, paddocks, and gardens – perfectly suited to equestrian use, hobby farming, or simply the joy of space, privacy, and connection with nature. The property benefits from oil-fired central heating, a private spring water supply, and septic tank drainage, all in keeping with its rural setting.

Telephone & Broadband: Telephone & Broadband: Telephone- subject to BT transfer regulations. According to comparethemarket.com the property has a broadband speed of: 21.64 Mbps (average speed of Mbps). The vendors have installed Starlink superfast broadband required for work.

Please note you should always confirm this by speaking to the specific provider you would like to use. This is for guidance only.

This property enjoys a glorious rural position, around 4.5 miles from Builth Wells, offering the best of both worlds – a tranquil setting with sweeping countryside views, yet only a short distance from a thriving market town. Builth Wells is a town rich in history, rising to prominence in the Victorian era as a celebrated spa resort that drew visitors from across the country to sample its famed mineral waters. While the spa baths are now part of the town’s heritage, Builth Wells continues to flourish, with a welcoming community atmosphere and an excellent range of amenities. Residents enjoy the convenience of both primary and secondary schools, a traditional cinema, leisure centre with swimming pool, and a strong sporting tradition spanning cricket, rugby, football, and golf. The town is also world-famous as the home of the Royal Welsh Show, the largest agricultural event in Europe, which each summer attracts thousands of visitors. Connectivity is excellent, with regular bus services linking Cardiff and North Wales, while nearby Builth Road railway station on the scenic Heart of Wales Line provides access to Swansea and Shrewsbury. Situated in the picturesque Wye Valley and close to the breath-taking Elan Valley at Rhayader, the area is a haven for lovers of the outdoors. Riverside walks, rolling Mid Wales countryside, and the renowned Red Kite Feeding Centre at Gigrin Farm are all within easy reach, making this a location that combines natural beauty with everyday convenience.


Floorplan for Disserth, Builth Wells, Powys Floorplan for Disserth, Builth Wells, Powys Floorplan for Disserth, Builth Wells, Powys
EPC Graph for Disserth, Builth Wells, Powys


Book a Property Valuation