Church Street, Rhayader - £600 PCM

bedrooms 2 baths 1 receptions 2
savesaved

Two bedroom terraced cottage boasting a wealth of character in a central location within the market town of Rhayader

Key Features

  • Wealth of character
  • Two bedroom character cottage
  • Central location within Rhayader
  • Council tax band 'C'
  • Energy performance certificate - D
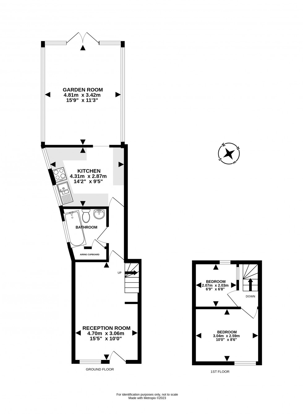
  • 4.81 x 3.42m garden room
  • Space for storing bins and flower bed to rear
  • Available Mid November 2025!
  • Deposit - £650

Positioned centrally within the market town of Rhayader, this fine two bedroom cottage is approached from Church Street over a courtyard garden with cobbled stone, and the front door opens up into a 4.70 x 3.06m reception room, with exposed beams and stonework, and storage area underneath the stairs leading to the first floor. A door from the reception room leads into an inner lobby with access into the downstairs bathroom. and further to the 4.31 x 2.87m kitchen. An opening from here leads into a 4.81 x 3.42m garden room. 

On the first floor, there are two bedrooms, measuring 3.04 x 2.59m and 2.07 x 2.03m.

Externally, the property benefits from the aforementioned front courtyard space, and to the rear is a pleasant flower bed and space for the bins. There is also a handy side access to the left of the property.

Available February 2024.

Council Tax Band 'C'

Rent - £650.00 per calendar month.

Deposit required - £600.00

PLEASE NOTE: ALL OUR LETTINGS ARE NO SMOKING AND NO PETS. ALL CONTRACT HOLDERS ARE REQUIRED TO COMPLETE AN APPLICATION FORM PROVIDING REFERENCES. WE WILL ALSO REQUIRE INFORMATION TO CARRY OUT A CREDIT CHECK WHICH IS PROVIDED BY A THIRD PARTY.

Telephone & Broadband: Telephone- subject to BT transfer regulations. According to comparethemarket.com the property has a broadband speed of: 47.55 Mbps (average speed of Mbps).

Please note you should always confirm this by speaking to the specific provider you would like to use. This is for guidance only.

Rhayader is a market town offering a wide range of amenities such as shops, cafes, hair dressers, pubs, a dentist, petrol station, school and leisure centre. The area is best known for its striking beauty and being home to the reservoirs and dams in the Elan Valley, which is perfect for country walks and taking in the fresh air. Just 14 miles away, Builth Wells has a range of amenities and facilities including Primary and secondary Schools, a cinema, leisure centre, cricket, rugby, football and golf clubs. It is also home to the internationally famous Royal Welsh Show which is the largest agricultural show in Europe. The town has good transport links, is on a bus route between Cardiff and North Wales and is also served by Builth Road Railway Station on the Heart of Wales Line. Situated within the Wye Valley, an area of natural beauty and close to the Elan Valley at Rhayader, it is well-known as a walker’s paradise whilst the Red Kite feeding centre at Gigrin Farm offers a truly unique experience to see the rare and magnificent birds on a daily basis.


Floorplan for Church Street, Rhayader, Powys
EPC Graph for Church Street, Rhayader, Powys
Book a Property Valuation