, Aberyscir, Brecon - £365,000

bedrooms 3 baths 1 receptions 1
savesaved

Situated in a delightful spot enjoying glorious countryside views, is this superb, three bed house with lawned gardens and parking.

Key Features

  • three bedrooms
  • wonderful family home
  • superbly finished throughout
  • quiet hamlet location
  • glorious countryside views
  • lawned gardens
  • parking
  • cloakroom and bathroom
  • living/dining room with wood burning stove
  • kitchen/breakfast room
  • ready to move straight in to

Situated in a beautiful and quiet spot, The Pastures is a spacious, contemporary family home. On the ground floor there is an entrance hall and lovely living/dining room which is flooded with natural light and enjoys views out towards the countryside and a stone fireplace with wood burning stove. The kitchen/breakfast room has base and wall cupboards, worktops, integrated BOSH oven and hob, dishwasher ceramic sink, plumbing for a washing machine and oil fired Rayburn. A stable door opens into a useful rear porch, perfect for wellies and coats and a downstairs cloakroom. Upstairs there are three bedrooms and an attractive bathroom with wall tiling, fitted mirror, a shower over the bath and useful storage and oak shelving. The property has been tastefully finished and has features such as wooden and tiled floors, wooden braced internal doors and oak window cills. Outside the garden is a good size, easily managed and a real sun trap. Backing onto fields it enjoys wonderful views and is made up of a paved patio area, slate chippings, a garden shed , sleeper retaining wall and lawn. It is a great space to BBQ and entertain.  The property also benefits from high performance Swedish made Westcoast composite windows and doors to the side and rear and uPVC windows at the front, oil central heating and parking. The ground surrounding the house on three sides gives potential for an extension or home office. 

Aberyscir is a small hamlet approximately 2 miles from the nearby village of Cradoc where there is a local primary school and renowned 18-hole golf course. Surrounded by glorious countryside there are plenty of wonderful walks on your doorstep. Brecon is 4 miles away and has a wide range of shops and amenities which include a cinema, theatre, leisure centre, library and golf course. It also has several good primary schools, a secondary school, college of further education and Christ College a private boarding school for boys and girls aged 7-18. With good access links Cardiff, Swansea and Hereford are all an hour’s drive and the nearest train station is in Abergavenny which is 24 miles away.

Council Tax: We have been informed that this property has been placed under council tax band ‘D’


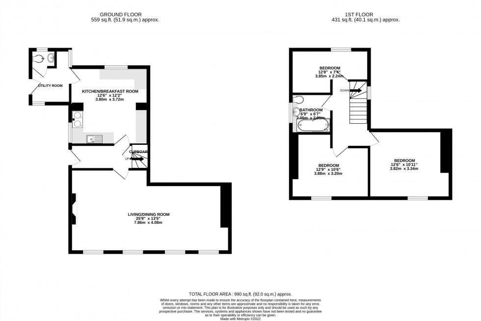
Floorplan for Aberyscir, Brecon, Powys
EPC Graph for Aberyscir, Brecon, Powys
Book a Property Valuation