Park Close, Abergavenny - £135,000

bedrooms 2 baths 1 receptions 1
savesaved

A rare opportunity to purchase a building plot, in a central town location, close to Bailey Park and local amenities. Full planning permission has been granted to build a two bedroom detached bungalow, with off road parking. Viewings by appointment only.

Key Features

  • Individual Self-Build Building Plot
  • Detached Two Bedroom Bungalow
  • Full Planning Permission Granted
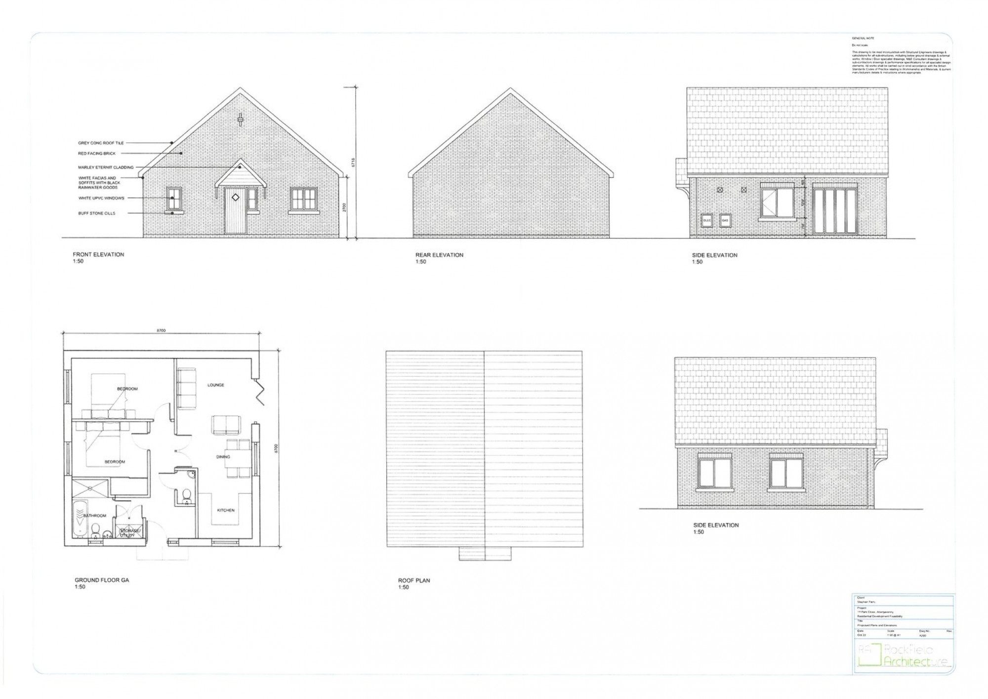
  • Planning Application Number - DM/2022/01525
  • Central Town Location
  • Off Road Parking
  • Close to Local Amenities
  • Freehold

Located in a popular residential area, close to the town centre and Bailey Park, this building plot has full planning permission to build a detached bungalow, making it a perfect self-build for people looking to downsize or move into town. Monmouthshire County Council approved the development on 22nd September 2025. Application Number - DM/2022/01525

The bungalow, measuring 8.7m x 8.7m has been thoughtfully laid out and comprises of an entrance hall with WC and storage cupboard, with doors leading to the bathroom, two bedrooms and the open-plan kitchen/dining/living room, that has bifold doors opening out to the garden. The bungalow has gardens to three sides; with the main gardens being East and West facing, making it a sunny plot. There is also parking for two vehicles. The plot is level with fence borders and is accessed to the side of number 11. The access is shared with 11 as the existing property will also have one parking space at the rear.

Agent’s notes: We have been made aware the development has to pay Monmouthshire County council a contribution towards affordable housing.

Park Close is a popular residential street, a stone’s throw from Bailey Park and is located close to the town centre.

The historic market town of Abergavenny is affectionately known as The Gateway to Wales, with the beautiful Brecon Beacons National Park on your doorstep. The town has a range of local amenities such as independent shops, supermarkets, cafés, restaurants, hotels, a theatre, cinema, general hospital, primary and secondary schools and a mainline train station. A celebrated annual food festival entices national and international visitors every September, together with cycling, walking, music and art events throughout the year. The town has good road links towards Hereford, Brecon, Swansea, Bristol, Newport and Cardiff via A465, A40 and A4042 trunk roads.

Services: Mains electricity, gas, water and drainage to be connected/ installed by the purchaser.

Council Tax: We have been informed that this property has yet to be placed under a council tax band.

Telephone & Broadband: Telephone- subject to BT transfer regulations. According to Ofcom the following networks are available: Openreach and Ogi. The speeds available are standard, superfast and ultrafast. For more information visit: https://checker.ofcom.org.uk/en-gb/broadband-coverage

Please note you should always confirm this by speaking to the specific provider you would like to use. This is for guidance only.


Floorplan for Park Close, Abergavenny, Monmouthshire
Book a Property Valuation