Underhill Crescent, Abergavenny - £199,950

bedrooms 3 baths 1 receptions 1
savesaved

Enjoying mountain views and benefiting from a generous garden offering the potential to extend, subject to planning, a three bedroom end of terrace house is sold with no onward chain.

Key Features

  • End of Terrace House
  • Three Bedrooms
  • No Chain
  • Generous gardens
  • Potential to Extend, Subject to Planning Permission
  • Mountain Views
  • Open-Plan Living/Dining Room
  • Kitchen & Bathroom
  • Gas Central Heating & uPVC Double Glazing
  • Freehold

Sold with no onward chain, this end of terrace house would be a great first home or equally as an investment property. Benefitting from a large garden to the side, the property offers potential for a purchaser to extend, subject to planning permission.

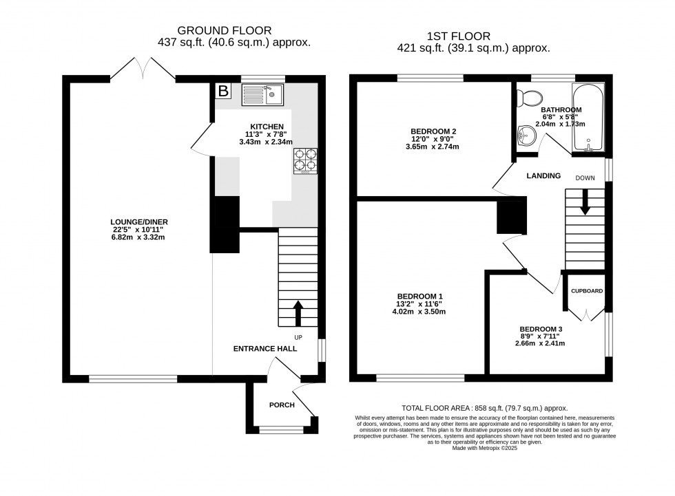
The house is gas centrally heated and uPVC double glazed, with the accommodation comprising of an entrance porch, opening into an open-plan lounge/diner with fitted kitchen off and double doors out to a raised patio. The kitchen is ready for an update but has an integrated gas hob and electric oven. Upstairs, there are three bedrooms, two of which are comfortable doubles and a bathroom.

Outside, the generous gardens to three sides are mainly lawned, with fence borders and a raised patio at the rear that enjoys mountain views and a sunny south-facing aspect.

Located on a housing estate less than one mile from the town centre, with a convenience store, fish and chip shop and primary and secondary schools located close by. The historic market town of Abergavenny, is affectionately known as The Gateway to Wales, with the beautiful Brecon Beacons National Park on your doorstep. The town has a range of amenities such as independent shops, supermarkets, restaurants, hotels, a theatre, cinema, general hospital, primary and secondary schools and a mainline train station. A celebrated annual food festival entices national and international visitors every September, together with cycling, walking, music and art events throughout the year. The town and surrounding area is well known for its renowned gastropubs and restaurants. The town has good road links towards Hereford, Brecon, Swansea, Bristol, Newport and Cardiff via A465, A40 and A4042 roads.

Council Tax: We have been informed that this property has been placed under council tax band ‘B’.

Services: All mains services. Gas central heating. Please note we have not tested the appliances, central heating or services.

Telephone & Broadband: Telephone- subject to BT transfer regulations. According to Ofcom the following networks are available: Openreach and Ogi. The speeds available are standard, superfast and ultrafast. For more information visit: https://checker.ofcom.org.uk/en-gb/broadband-coverage

Please note you should always confirm this by speaking to the specific provider you would like to use. This is for guidance only.


Floorplan for Underhill Crescent, Abergavenny, Monmouthshire
EPC Graph for Underhill Crescent, Abergavenny, Monmouthshire
Book a Property Valuation