, Pont Nedd Fechan, Ystradfellte - £1,100,000

bedrooms 5 baths 3 receptions 3
savesaved

Situated in the heart of waterfall country, Clyn Gwyn is a fantastic lifestyle opportunity. It comprises of a wonderful five- bedroom, 17th century Welsh longhouse situated within its own 4.3 acres of grounds. In addition, there is an established self-contained two-storey stone bunkhouse, a large polytunnel & timber double garage and carport. Finally it has a popular self=contained café to serve the many visitors to the Water Falls trail.

Key Features

  • Wonderful, Five Bed Welsh Longhouse
  • Set In 4.3 Acres Of Well Maintained Grounds
  • Superb Rural Location Within The Renowned Waterfall Country Within The Brecon Beacons National Park
  • Wonderful Countryside Views
  • Separate & Established 19 Bed Bunkhouse
  • Plenty Of Parking
  • Timber Double Garage & Carport
  • Timber Built Cafe
  • Large Poly Tunnel
  • A Great Opportunity To Acquire A Well Established Successful Tourist Business Or Create Your Own Unique Life Style Change

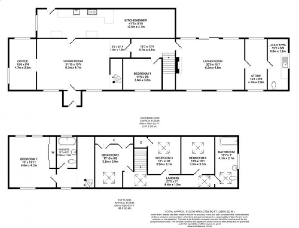
Clyn Gwyn is a beautifully modernised family home offering impressive, versatile accommodation ideal for multi- generational living, a growing family or those wishing to continue a successful hospitality business. Stylishly finished throughout and ready to move straight in, it perfectly blends contemporary comforts with charming character features. Upon entering, a porch leads into a spacious yet cosy living room featuring an exposed painted stone wall, an inglenook fireplace with wood-burning stove and a charming winding staircase. From here, a door leads to a useful home office. Behind the living room is a secondary kitchen fitted with base and wall cupboards, wooden worktops, a range cooker and plumbing for a dishwasher, perfect for use when accommodating guests. The kitchen leads into a snug which flows effortlessly into the dining room, showcasing wooden flooring, exposed painted stonework and a door to the rear, creating a wonderful social space. A hallway leads past a convenient ground floor bedroom and the main staircase, opening into the showstopping main kitchen/diner. This is the heart of the home, boasting extensive cupboard space, a pantry cupboard, large central island, quartz worktops, range cooker, integrated dishwasher and sliding patio doors leading out to a patio seating area, perfect for entertaining. An opening leads into a modern glass garden room, a peaceful spot to relax and take in the views. Off the kitchen is a well-designed laundry room fitted with built-in cupboards, a deep glazed sink with hanging space above and plumbing for a washing machine and dryer. Completing the ground floor is a cloakroom and separate shower room. Upstairs, the main staircase leads to three well-proportioned bedrooms, a cloakroom and family bathroom. The secondary staircase from the living room leads to an impressive master suite which enjoys fitted wardrobes and a luxurious en-suite bathroom with bath and separate shower.

Clyn Gwyn is set within approximately 4.3 acres of beautiful grounds, offering an idyllic blend of landscaped gardens, parking, paddocks and established hospitality facilities. A gated driveway leads into a large parking area providing ample space for residents, guests and visitors. The formal gardens lie to both the front and rear of the house, featuring generous lawns and paved patio areas perfect for outdoor dining, entertaining or simply relaxing and taking in the peaceful surroundings. To the rear, the field includes a semi-permanent polytunnel with a wooden floor, which is a versatile space for extra guest space, parties, weddings or wellness retreats. The adjoining paddock is ideal for those wishing to keep animals or expand the tourism offering. A key feature of the property is the bunkhouse which is a converted stone barn that is currently run as a successful 19-bed self-catering business. Its fully equipped and ready to generate income from day one as the 2026 bookings testify. The Bunkhouse comprises an entrance hall, kitchen/diner, sitting room, three sleeping areas and three recently updated shower/WC facilities. Outside, there are picnic benches to the front and a covered barbecue area with seating providing an inviting social space where guests can gather around a firepit and enjoy the countryside atmosphere.

Near the main entrance is a timber-built café with outdoor seating, currently operated by the owners to serve locals, walkers and tourists visiting this popular location.

Clyn Gwyn has a premises license and in the summer a Stretch tent facility proved highly popular with visitors providing alcoholic beverages and Pizzas.

There is plenty of storage outside. In addition to a separate laundry facility and tool sheds, there is a generous timber-built double garage/workshop with power and lighting, along with an adjoining two-bay open-fronted carport.

Clyn Gwyn is offered as a lifestyle opportunity. It is available as a going concern to include the fixtures and fittings in the bunkhouse, website rights and associated marketing assets. Financial accounts are available on request following a viewing.

Clyn Gwyn is nestled within the Brecon Beacons National Park, situated between the rural village of Ystradfellte and the larger settlement of Pont Nedd Fechan. The area is renowned for its breathtaking waterfalls, wooded river gorges and scenic walking trails, making it a haven for outdoor enthusiasts and nature lovers. The Four Water Fall Walk is considered one of the best waterfall walks in Britain with delightful riverside trails along the Afon Mellte with its series of roaring waterfalls. A little further away is Dan yr Ogof which has the largest show cave complex in the UK. Despite its tranquil and rural setting, Pont Nedd Fechan benefits from a welcoming community atmosphere and is conveniently located within easy reach of the nearby towns of Glynneath and Neath, offering a range of shops, cafés, primary schools and everyday amenities. Excellent road links provide easy access to the A465 Heads of the Valleys Road, making commuting to Swansea, Cardiff and the wider South Wales region simple. This idyllic location offers the perfect balance of peaceful countryside living with adventure on your doorstep, all while remaining well connected to urban centre, making Clyn Gwyn an ideal retreat for those seeking natural beauty, outdoor lifestyle and convenience.

Council Tax: We have been informed that this property has been placed under council tax band ‘H’.

Services: Mains electricity and water. Private drainage. Oil central heating. Please note we have not tested the appliances, central heating or services.

Please note: There is a public footpath that runs through part of the property.


Floorplan for Pont Nedd Fechan, Ystradfellte, Powys
EPC Graph for Pont Nedd Fechan, Ystradfellte, Powys


Book a Property Valuation