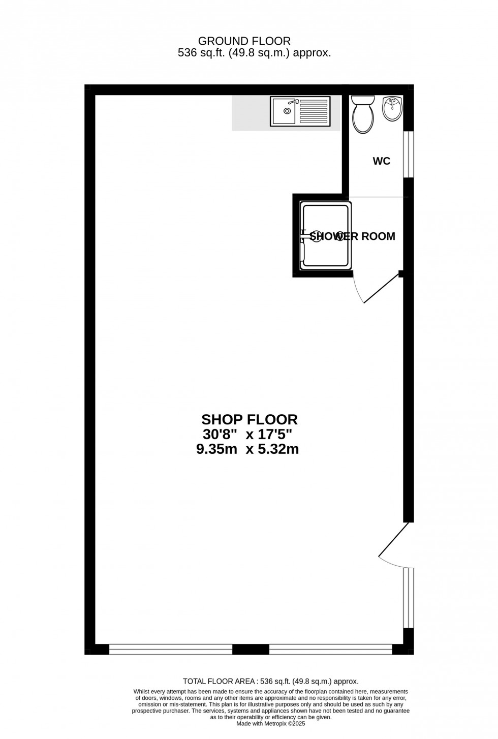
In a prominent road side location just off the main high street within the town centre, a ground floor, lock up shop is available to rent immediately. Enjoying good frontage its approximately 50sqm, has a small kitchen and shower room.
Your Explicit Consent
You must be 18 years or older to register for our property matching service through this website ("Service").
From time to time we will send you information about properties that we feel may be of interest to you and/or provide you with information about our valuation services.
If you would like to receive information from us, please indicate this by selecting the appropriate box(es) below:
I would like to hear about properties which you think might be of interest.
I would like to hear about your valuation services.
Our Privacy Policy and Notice describes how we use your data, who we might share it with and what rights you have.
Our fees for tenants are fairly simple -
£30 per applicant credit check
£80 per property application fee