, Cwmcamlais, Brecon - £1,000 PCM

bedrooms 3 baths 2 receptions 2
savesaved

In a lovely rural location and enjoying glorious countryside views is this spacious, three bed barn conversion.

Key Features

  • three bedrooms
  • rural location
  • wonderful countryside views
  • parking
  • garden
  • good size living room
  • kitchen
  • utility and WC
  • shower room and en-suite
  • large games room
  • unfurnished
  • available now

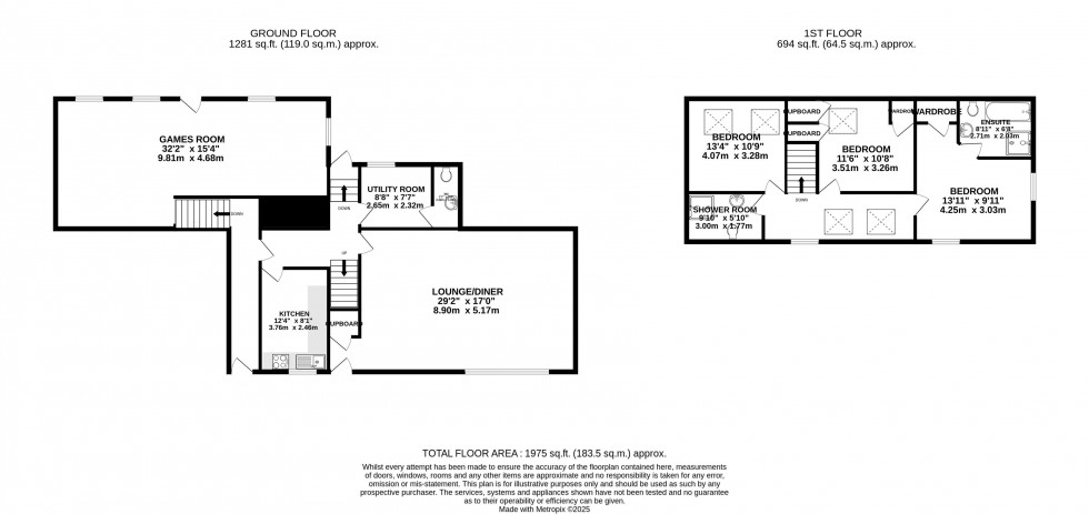
Situated on a courtyard with two other properties, in a delightful rural location is this lovely, spacious, three bed barn conversion. On the ground floor there is a good size living/dining room, kitchen, utility and cloakroom. There is also a large games room. Upstairs there are three bedrooms, a shower room and en-suite bathroom. Outside at the front there is parking. The rear garden is a good size and backs onto farmland enjoying wonderful countryside views.

- RENT £1,000 PCM

- DEPOSIT £1,000

- Available now

- Unfurnished

- Council Tax Band 'F'

- Oil fired central heating

- Private water and drainage

- Pets considered

PLEASE NOTE: ALL CONTRACT HOLDERS ARE REQUIRED TO COMPLETE AN APPLICATION FORM PROVIDING REFERENCES. WE WILL ALSO REQUIRE INFORMATION TO CARRY OUT A CREDIT CHECK WHICH IS PROVIDED BY A THIRD PARTY.


Floorplan for Cwmcamlais, Brecon, Powys
EPC Graph for Cwmcamlais, Brecon, Powys
Book a Property Valuation