St Davids Street, Brecon - £215,000

bedrooms 2 baths 1 receptions 1
savesaved

Situated in a popular location is this great, two double bed house enjoying an easily managed garden and parking. An ideal first time buy or investment!.

Key Features

  • two double bedrooms
  • popular location within easy access of the town centre
  • living room
  • kitchen/diner
  • utility room and cloakroom
  • attractive bathroom
  • easily managed garden
  • parking space
  • gas central heating
  • ideal first time buy or investment

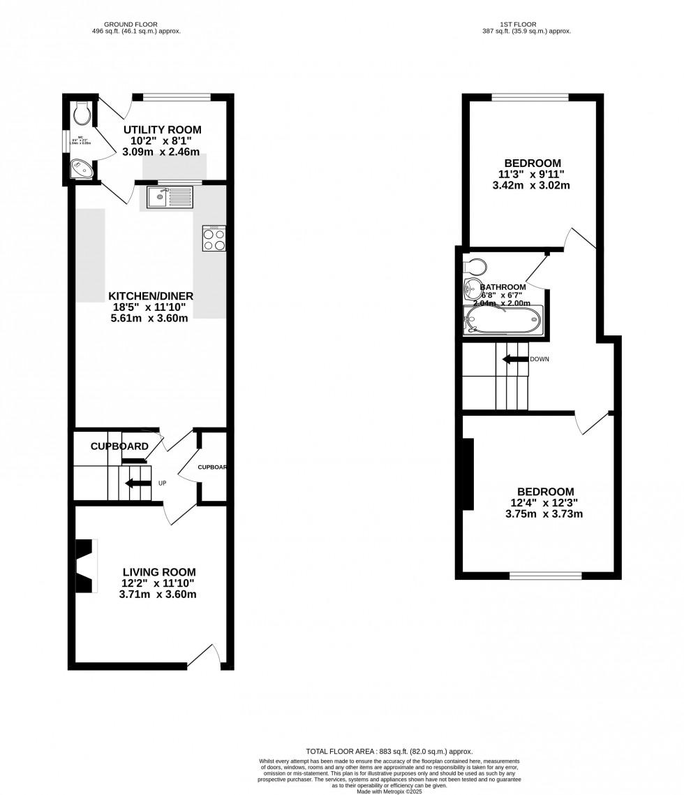
This great terraced house is an ideal starter home or investment opportunity. On the ground floor there is a living room, inner hall with two storage cupboards and a good size kitchen/diner with base and wall cupboards and integrated oven and hob. Off the kitchen is a useful utility room with plumbing for a washing machine and cloakroom. Upstairs are the two bedrooms and a bathroom. Outside the rear garden is easily managed with a paved patio area and artificial grass. Rear access leads to the parking space. The property also benefits from gas central heating and uPVC double glazing. With no onward chain, viewing is recommended.

St Davids Street is located in Llanfaes a popular residential area. It is on a no through road, close to two free car parks and within easy access of the town centre. Brecon is a traditional market town, the centre of the Brecon Beacons National Park. Surrounded by wonderful countryside it has a wide range of shops and amenities which include a cinema, theatre, leisure centre, library and golf course. It also has several good primary schools, a secondary school, college of further education and Christ College a private boarding school for boys and girls aged 7-18. With good access links Cardiff, Swansea and Hereford are all an hour’s drive and the nearest train station is in Abergavenny which is 20 miles away.

Services: All mains services. Gas central heating. Please note we have not tested the appliances, central heating or services.

Council Tax: We have been informed that this property has been placed under council tax band ‘C’.


Floorplan for St Davids Street, Brecon, Powys
EPC Graph for St Davids Street, Brecon, Powys
Book a Property Valuation