Railway Terrace, Builth Road, Builth Wells - £399,950

bedrooms 3 baths 2 receptions 2
savesaved

A unique former railway cottage with two acres, yoga and wellness studio and extensive outbuildings, including a rare historic goods shed. Buzzard’s Nest offers remarkable scope for retreat use, creative enterprise or tranquil country living!

Key Features

  • Former Victorian railway cottage set within approximately two acres of beautifully nurtured natural grounds
  • A sanctuary created through permaculture principles, wildlife-friendly planting and sustainable living
  • Features a rare, substantial former Railway Goods Shed with exceptional scope for creative or community-focused conversion
  • Purpose-built yoga and wellness studio, perfect for retreats, meditation, arts, crafts and small gatherings
  • A collection of versatile outbuildings, including outdoor kitchen, workshops and stores, supporting a wide range of uses
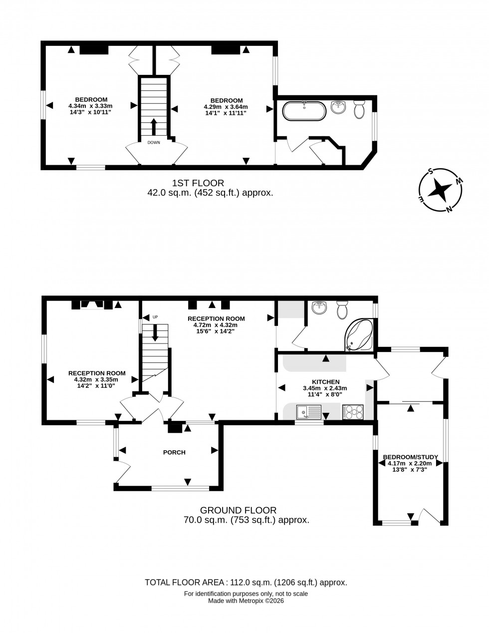
  • Warm, characterful accommodation with two reception rooms, kitchen, study, two bathrooms and two spacious bedrooms
  • A flourishing setting for holistic living, eco-tourism, wellness practices and community events
  • Peaceful, secluded location in the Mid Wales countryside, offering tranquillity, inspiration and deep connection to nature
  • Council tax band - C (2025-6 £1,920.66)
  • Energy performance certificate - E

Buzzard’s Nest is a rare harmony of landscape, history, and vision. Set within approximately two acres of gently nurtured grounds, this former Victorian railway cottage – once home to the local signalman – has been lovingly shaped over the past decade into a tranquil sanctuary through ecological care, creativity, and community spirit. Nestled in the Mid Wales countryside, the property is enveloped by birdsong, open skies, and the soft, unbroken calm that is increasingly hard to find. Here, residents are treated not only to the quiet majesty of the land but also to spectacular, colorful sunsets that light up the horizon in a display of vivid, ever-changing beauty.

The current custodians arrived over a decade ago – a sure-fire sign they made a home – seeking a life closer to the land. They have cultivated a property that celebrates wildlife, natural beekeeping, and sustainable food growing. Guided by a permaculture-based design, the land now thrives as a productive, inspiring ecosystem: food is grown and harvested throughout the year, wildlife flourishes, and the atmosphere invites rest, reflection, and renewal.

The main cottage provides warm, characterful accommodation over two floors. The ground floor features an entrance porch leading to a series of welcoming reception rooms, a kitchen overlooking the gardens, a study or third bedroom, and a bathroom. Upstairs, two generously proportioned bedrooms sit beneath the cottage roofline, offering peaceful spaces with tranquil views of the surrounding grounds. While retaining the modest charm of its railway heritage, the cottage is fully prepared to support modern living, creative work, or the continuation of a retreat space.

Beyond the cottage, the grounds reveal a collection of outbuildings that contribute to the property’s distinctive identity. The centrepiece is the rare former Railway Goods Shed – one of the few remaining in the area – offering exceptional potential for conversion into a community venue, workshop hall, gallery, retreat space, or other creative use. Nearby, a beautifully crafted studio provides a light, airy environment ideal for yoga, meditation, arts and crafts, teaching, or intimate gatherings, enhancing the property’s retreat character. Additional features include an outdoor kitchen for communal meals or workshops, and a variety of smaller structures, workshops, and stores, all reflecting the property’s intentional, lived-in evolution.

The grounds themselves are perhaps Buzzard’s Nest’s greatest treasure. Thoughtfully designed with ecological and spiritual sensitivity, they blend open meadow, wildlife habitats, food-growing beds, and meandering pathways that encourage exploration and stillness. Over the years, the land has become a hub for community gatherings – from yoga mornings and wellness events to art sessions and shared creative experiences. A charming summerhouse has periodically hosted holiday guests, providing both a retreat space and a potential income stream, while Dulas Brook runs along the property boundary, offering a picturesque spot for a refreshing dip. Situated near the welcoming small-town community of Builth Wells, the location perfectly complements the property’s spirit. Miles of countryside paths, rivers, and woodland walks stretch out nearby, allowing residents to engage with the wider landscape as easily as they enjoy the sanctuary of the property itself.

Buzzard’s Nest is offered as a freehold property and is available to view strictly by appointment through the selling agent. It presents an extraordinary opportunity for those seeking a holistic retreat, a creative haven, or simply a home where lifestyle and vision align in harmony with nature.

Builth Road enjoys excellent transport connections, with a local bus stop and the Heart of Wales railway line close at hand. Just over a mile away lies the thriving market town of Builth Wells, offering a wide range of amenities including primary and secondary schools, a cinema, leisure centre, and well-regarded cricket, rugby, football and golf clubs. The town is also home to the internationally renowned Royal Welsh Show – the largest agricultural event in Europe. With strong transport links, regular bus services between Cardiff and North Wales, and rail access via Builth Road Station, the area is exceptionally well connected. Set within the stunning Wye Valley, an Area of Natural Beauty, and just a short drive from the breathtaking Elan Valley at Rhayader, the surroundings are a haven for walkers and nature lovers. Nearby, the Red Kite Feeding Centre at Gigrin Farm provides a remarkable daily spectacle, offering an unforgettable opportunity to see these magnificent birds up close.


Floorplan for Builth Road, Builth Wells, Powys Floorplan for Builth Road, Builth Wells, Powys


Book a Property Valuation