College Lane, Trefecca, Brecon - £575,000

bedrooms 5 baths 3 receptions 1
savesaved

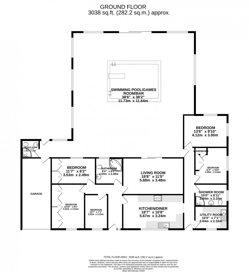
This detached, five bed bungalow is deceptively spacious and enjoys an indoor heated swimming pool, parking, two garages and lovely, good size lawned gardens.

Key Features

  • five bedrooms
  • detached bungalow
  • parking and two garages
  • private, good size lawned gardens
  • quiet village location surrounded by glorious countryside
  • indoor heated swimming pool/games room/bar
  • living room
  • kitchen/diner and utility room
  • bathroom and two shower rooms
  • no chain

Jenterra is a deceptively spacious, detached bungalow which is tucked away within a quiet hamlet setting. The accommodation is well-laid out and comprises an entrance hall, a generous kitchen/diner, living room and a useful utility room. There are five bedrooms in total, three of which benefit from built-in wardrobes, along with a family bathroom and a shower room. To the rear of the property lies a truly unexpected and impressive feature, an indoor heated swimming pool and leisure area incorporating a games and bar space. Perfect for family living and entertaining alike, this versatile room is accessed from both the rear hallway and via sliding patio doors from the living room. It also enjoys direct access to the garden through further patio doors, has its own shower room and provides internal access to the garage. Outside, the property is approached via a drive leading to a parking area and garage which is complemented by a beautifully maintained front garden with manicured lawns, established shrub borders and a summer house. The lawns extend to the side and rear, where further features include a greenhouse and a paved patio area adjoining the pool room. The gardens are private and well-screened, creating an ideal outdoor space to enjoy throughout the year. To the rear of the garden is an additional garage.

Trefecca is a quiet hamlet surrounded by glorious countryside. It is 1.3 miles from Talgarth with there is independent shops, cafes, and pubs. There is also a doctors surgery and primary school. Brecon is approx. 8 miles away and is a traditional market town known for its stunning scenery, rich history and welcoming community. It boasts a wide range of amenities including independent shops, cafés, restaurants, supermarkets, a leisure centre, theatre and the popular weekly market. The town is also well served by both primary and secondary schools, as well as Christ College, a private boarding school for boys and girls aged 7-18. For outdoor enthusiasts, the surrounding countryside is second to none. Residents enjoy immediate access to picturesque walks, cycling routes, riverside paths and iconic peaks such as Pen y Fan. The Monmouthshire & Brecon Canal winds through the area, adding charm and offering peaceful towpath walks. Brecon benefits from good road links, with easy access to Abergavenny, Hereford, Cardiff and Swansea, making it ideal for commuters or those wanting to explore further afield while still enjoying a slower pace of life.

Council Tax: We have been informed that this property has been placed under council tax band ‘F’.

Services: Services TBC. Please note we have not tested the appliances, central heating or services.


Floorplan for Trefecca, Brecon, Powys
EPC Graph for Trefecca, Brecon, Powys


Book a Property Valuation