Tai Cae Mawr, Llanwrtyd Wells - £425,000

bedrooms 4 baths 3 receptions 3
savesaved

Immaculate modernised dormer bungalow with spacious interiors, far-reaching views and versatile accommodation, located on the peaceful edge of Llanwrtyd Wells. A standout home in a superb setting!

Key Features

  • Superb modernised detached dormer bungalow on the peaceful outskirts of historic Llanwrtyd Wells
  • Generous, light-filled living spaces designed to maximise far-reaching countryside views
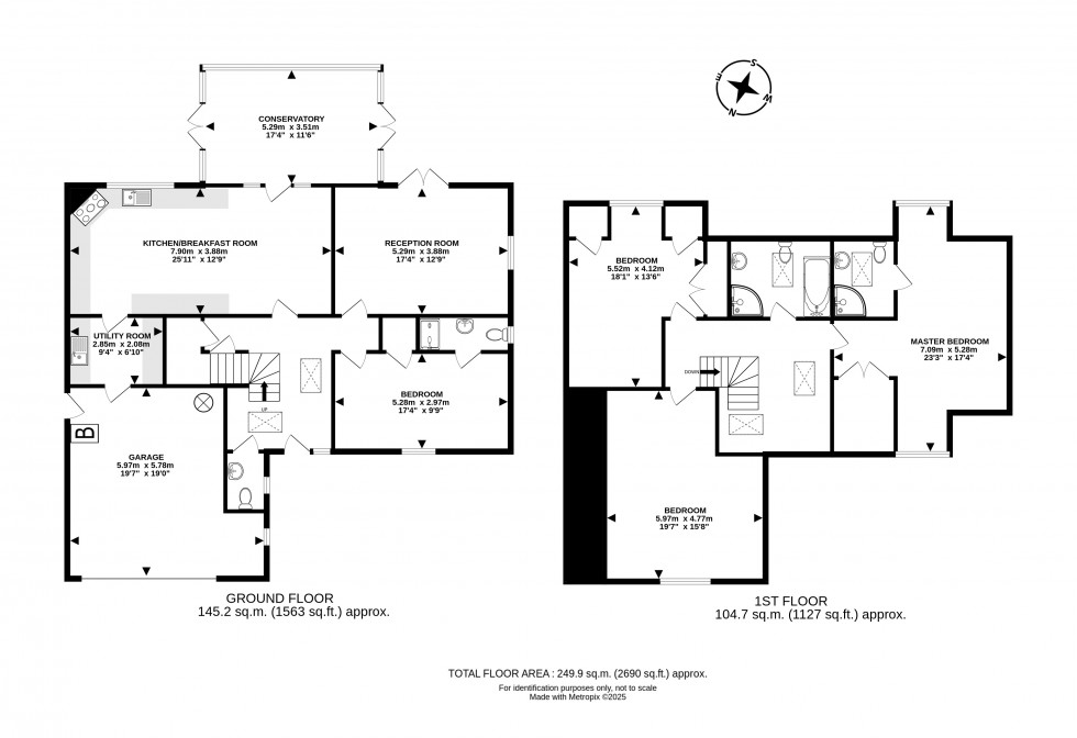
  • Spacious entrance hallway with gallery landing, cloakroom and large dual-access understairs storage
  • Ground-floor guest suite with built-in wardrobe and private en-suite shower room
  • Stylish kitchen/breakfast room with central island, flowing into a large conservatory overlooking the garden
  • Impressive master suite with large wardrobe and en-suite, plus two further versatile first-floor bedrooms
  • Luxurious family bathroom featuring spa bath and separate corner shower
  • Attractive wraparound gardens, generous parking, electric garage door and a decked terrace ideal for enjoying the views
  • Council tax band - E (2025-6 £2,683.09)
  • Energy performance certificate - C

Set on the peaceful outskirts of Llanwrtyd Wells, this superbly presented and thoughtfully modernised detached dormer bungalow offers an exceptional blend of contemporary comfort and rural tranquillity. Llanwrtyd Wells, celebrated as Britain’s smallest town, boasts a rich Victorian spa heritage alongside a vibrant calendar of unique events and festivals. Surrounded by the dramatic landscapes of Mid Wales, the area provides both serenity and a welcoming sense of community.

The property has been carefully designed to create generous, flowing living spaces that maximise natural light and far-reaching countryside views. A spacious entrance hallway sets the tone, featuring a striking gallery landing above, a downstairs cloakroom, and a large walk-in understairs storage cupboard with dual access, providing excellent practical capacity.

The ground floor also benefits from a well-appointed guest suite, complete with an extensive built-in wardrobe and private en-suite shower room – ideal for visiting family or multi-generational living. The main reception room is a superb living and entertaining space, opening directly onto the rear garden through double doors that frame the home’s south-easterly outlook. The kitchen/breakfast room has been designed for both everyday living and sociable cooking, with generous preparation space, a central island, and provision for a range-style cooker. This leads seamlessly into a large conservatory, capturing the same open views and offering an inviting year-round space. A separate utility room connects internally to the substantial L-shaped garage, which houses the central heating and hot-water systems.

Upstairs, the first floor reveals an impressive master suite, complete with a larger-than-average wardrobe and en-suite shower room. Two further spacious bedrooms offer remarkable versatility; one features under-eaves storage and a built-in double wardrobe and is currently used as a library, while the other – positioned above the garage – serves as a music and hobby room. A luxurious family bathroom, fitted with a spa bath, corner shower, WC, and washbasin, provides a relaxing retreat for the household.

Externally, the property continues to impress. A generous driveway leads to the garage with an electric entrance door, ensuring easy access and secure storage. The gardens wrap around the home, providing attractive lawned and planted areas to the front, sides, and rear, complemented by a large decked terrace directly outside the conservatory – perfect for outdoor dining, morning coffee, or simply enjoying the expansive rural scenery.

Carefully improved and maintained, this energy-efficient home offers modern living in a setting rich with character, history, and natural beauty – an ideal retreat for those seeking space, comfort, and connection to the Mid Wales countryside.

The property sits within a modern and well-presented development on the southern fringes of Llanwrtyd Wells, one of the smallest towns in Mid Wales. Nestled beside the River Irfon and with a population of around 1,551, the town proudly claims the title of Britain’s smallest. Positioned on the A483 between Llandovery and Builth Wells, it enjoys easy access to the Tywi and Irfon valleys and is surrounded by some of the region’s most picturesque landscapes. Llanwrtyd Wells grew as a Victorian spa destination following the discovery of the healing waters of Ffynnon Ddrewllyd in 1732, and the spring still exists today. The town is renowned for its unique and internationally celebrated events, including the World Bog Snorkelling Championships and the Man versus Horse Marathon, which bring a lively atmosphere to this otherwise peaceful rural community. Just 13 miles to the north lies the vibrant market town of Builth Wells, set on the banks of the Rivers Wye and Irfon within the historic boundaries of Brecknockshire. Surrounded by exceptional countryside, Builth Wells is best known for hosting the Royal Welsh Show - the largest agricultural show in Europe - which attracts more than 240,000 visitors each year and brings a wealth of culture, commerce and activity to the area.


Floorplan for Tai Cae Mawr, Llanwrtyd Wells, Powys
EPC Graph for Tai Cae Mawr, Llanwrtyd Wells, Powys


Book a Property Valuation