Temple Street, Llandrindod Wells - £700 PCM

bedrooms 3 baths 1 receptions 1
savesaved

Modern Living in the Heart of the town! This superbly appointed three bedroom maisonette style apartment just off the centre of Llandrindod Wells, offering generous accommodation and buzzer entry system.

Key Features

  • Superbly proportioned maisonette apartment
  • Wonderful flexible accommodation with up to three bedrooms
  • Handily located just a short walk from the town centre
  • First floor accommodation
  • Energy performance certificate - C
  • Council tax band 'B'
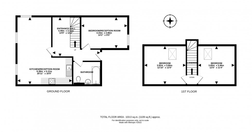
  • 6.38 x 5.11m L-shaped kitchen/reception room
  • Deposit - £750
  • Available end of January 2026!

From Temple Street, the property is accessed via a communal entrance for three apartments, and a decorative plum slate pathway leads up to the front door. The main entrance to this maisonette is accessed from the first floor, and a large entrance hallway gives access to the majority of the rooms on offer.

The property boasts a fantastic L shaped kitchen/reception room measuring 6.38 x 5.11m, a 4.33 x 2.86m reception room/further bedroom peacefully located at the rear of the building, a modern bathroom suite and two further double bedrooms on the first floor.

Available late January 2026.

Council Tax Band 'B'

Rent- £700.00 per calendar month.

Deposit required - £750.00

PLEASE NOTE: ALL OUR LETTINGS ARE NO SMOKING AND NO PETS. ALL TENANTS ARE REQUIRED TO COMPLETE AN APPLICATION FORM PROVIDING REFERENCES. WE WILL ALSO REQUIRE INFORMATION TO CARRY OUT A CREDIT CHECK WHICH IS PROVIDED BY A THIRD PARTY.

Telephone & Broadband: Telephone- subject to BT transfer regulations. According to comparethemarket.com the property has a broadband speed of: 45.30 Mbps (average speed of Mbps).

Please note you should always confirm this by speaking to the specific provider you would like to use. This is for guidance only.

The property is located in a convenient position in Llandrindod Wells, which is the county town of the largest county in Wales, Powys. Offering an extensive range of retail, recreational and educational facilities the Spa Town is a popular destination for visitors due to the picturesque surrounding countryside and mixture of beautiful Victorian and Edwardian town houses. Llandrindod is easily accessible by both rail and road with several local bus services in and around the area, neighbouring towns and villages. There is outstanding education available in the area, with several primary schools, a comprehensive secondary school and sixth form. Llandrindod also boasts The Albert Hall theatre, the National Cycle Collection museum and the large man-made lake and accompanying sculptures. The town also hosts the annual Victorian Festival Many where locals and visitors dress in antique costumes, and the whole town steps back in time. The town itself boasts many sporting and recreational facilities including a Football Club, Rugby Club, an international standard outdoor bowling green which hosts national and international events and a newer indoor bowling centre and highly regarded 18 hole golf course and driving range. There is also a leisure centre with full sized swimming pool, gym, AstroTurf pitch and indoor sports hall. Situated within the Wye Valley, an area of natural beauty and close to the Elan Valley at Rhayader, it is well-known as a walker’s paradise whilst the Red Kite feeding centre at Gigrin Farm offers a truly unique experience to see the rare and magnificent birds on a daily basis.


Floorplan for Temple Street, Llandrindod Wells, Powys
EPC Graph for Temple Street, Llandrindod Wells, Powys


Book a Property Valuation