Rainbow View, Llandrindod Wells - £900 PCM

bedrooms 3 baths 1 receptions 1
savesaved

Situated on the edge of Llandrindod Wells, this superb home was constructed in 2023 and boasts generous accommodation, off road parking and sizeable gardens!

Key Features

  • L-shaped open plan kitchen/reception room
  • Peaceful location on the outskirts of Llandrindod Wells
  • Off-road parking and large rear gardens
  • Energy performance certificate - B
  • 3 bed detached family home
  • Deposit - £900
  • Available Middle of February
  • Council tax band - E

Are you ready to live in this energy efficient, recently constructed family home, set in a convenient location on the outskirts of the spa town of Llandrindod Wells!

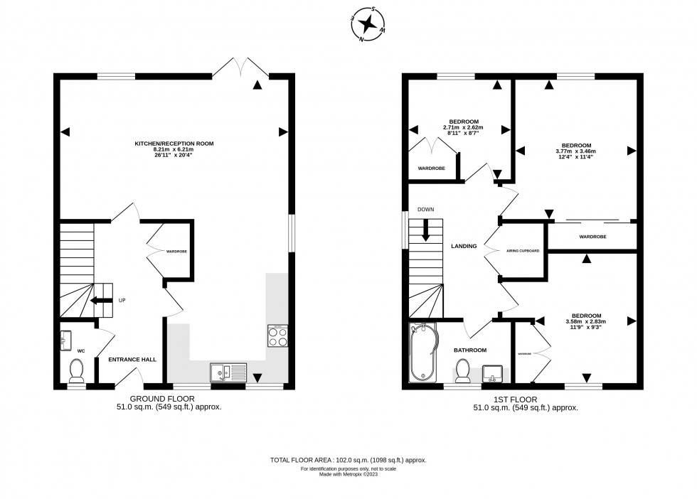
The accommodation is well laid out, with the downstairs comprising a large L-shaped kitchen/reception room, offering plenty of space for food preparation, cooking and dining, as well as relaxing with a pretty outlook over the large rear gardens. The entrance hallway also has a downstairs WC.

The landing gives access into the three bedrooms on the first floor, all with built-in wardrobes, and enjoying views to the countryside. The family bathroom enjoys a suite of panelled bath, low-flush WC and wash hand basin inset into a vanity unit.

The rear large wraps around the property and is laid mainly to lawn, with pretty borders and a patio area. To the front of the property is parking for two vehicles.

VIEWINGS ESSENTIAL!

***Please note that the photographs were taken during a previous marketing campaign.***

Available Mid February 2026

Council Tax Band - E

Rent - £900.00 per calendar month

Deposit required - £900.00

PLEASE NOTE: ALL CONTRACT HOLDERS ARE REQUIRED TO COMPLETE AN APPLICATION FORM PROVIDING REFERENCES. WE WILL ALSO REQUIRE INFORMATION TO CARRY OUT A CREDIT CHECK WHICH IS PROVIDED BY A THIRD PARTY.

Telephone & Broadband: Telephone- subject to BT transfer regulations. According to comparethemarket.com the property has a broadband speed of: 367.70 Mbps (average speed of Mbps).

Please note you should always confirm this by speaking to the specific provider you would like to use. This is for guidance only.

The property is located on the fringes of the popular Llandrindod Wells, which is the county town of the largest county in Wales, Powys. Offering an extensive range of retail, recreational and educational facilities the Spa Town is a popular destination for visitors due to the picturesque surrounding countryside and mixture of beautiful Victorian and Edwardian town houses. Llandrindod is easily accessible by both rail and road with several local bus services in and around the area, neighbouring towns and villages. There is outstanding education available in the area, with several primary schools, a comprehensive secondary school and sixth form. Llandrindod also boasts The Albert Hall theatre, the National Cycle Collection museum and the large man-made lake and accompanying sculptures. The town also hosts the annual Victorian Festival where locals and visitors dress in antique costumes, and the whole town steps back in time. The town itself boasts many sporting and recreational facilities including a Football Club, Rugby Club, an international standard outdoor bowling green which hosts national and international events and a newer indoor bowling centre and highly regarded 18 hole golf course and driving range. There is also a leisure centre with full sized swimming pool, gym, AstroTurf pitch and indoor sports hall. Situated within the Wye Valley, an area of natural beauty and close to the Elan Valley at Rhayader, it is well-known as a walker’s paradise whilst the Red Kite feeding centre at Gigrin Farm offers a truly unique experience to see the rare and magnificent birds on a daily basis.


Floorplan for Rainbow View, Llandrindod Wells, Powys
EPC Graph for Rainbow View, Llandrindod Wells, Powys


Book a Property Valuation