Old Barn Way, Abergavenny - £245,000

bedrooms 3 baths 1 receptions 2
savesaved

Extended, three bedroom semi-detached house in a popular residential area. An ideal first home, it has off road parking, level rear garden, scope for improvement and no onward chain.

Key Features

  • Extended Three Bed Semi
  • Popular Location
  • Two Reception Rooms
  • Modern Kitchen
  • Bathroom
  • Useful Utility Room & Storage
  • Off Road Parking
  • Level Rear Gardens
  • No Chain
  • Gas Central Heating
  • uPVC Double Glazing
  • Freehold

Well-presented and ready to move straight into, this semi-detached house is a great way to get your foot on the ladder. The property benefits from gas central heating and uPVC double glazing.

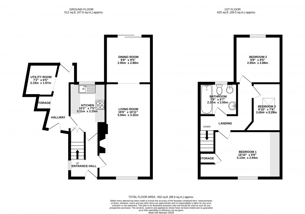
Extended and enjoying scope to improve further, the house comprises of an entrance hall, light and airy living room which opens onto a dining room with patio doors onto the rear garden. There is also a modern fitted kitchen with an external door off leading to a very useful, covered alley with storage and utility room.

Upstairs, there are three bedrooms, one with fitted storage and a tiled bathroom with shower over a bath.

To the front, there is a low-maintenance garden providing plenty of parking. The rear garden is enclosed with two patios, a lawn and established borders.

The historic market town of Abergavenny, is affectionately known as The Gateway to Wales, with the beautiful Brecon Beacons National Park on your doorstep. The town has a range of amenities such as independent shops, supermarkets, restaurants, hotels, a theatre, cinema, general hospital, primary and secondary schools and a mainline train station. A celebrated annual food festival entices national and international visitors every September, together with cycling, walking, music and art events throughout the year. The town and surrounding area is well known for its renowned gastropubs and restaurants. The town has good road links towards Hereford, Brecon, Swansea, Bristol, Newport and Cardiff via A465, A40 and A4042 roads.

Council Tax: We have been informed that this property has been placed under council tax band ‘C’.

Services: All mains services. Gas central heating. Please note we have not tested the appliances, central heating or services.

Telephone & Broadband: Telephone- subject to BT transfer regulations. According to ofcom the following networks are available: openreach and Ogi. The speeds available are standard, superfast and ultrafast. For more information visit: https://checker.ofcom.org.uk/en-gb/broadband-coverage

Please note you should always confirm this by speaking to the specific provider you would like to use. This is for guidance only.


Floorplan for Old Barn Way, Abergavenny, Monmouthshire
EPC Graph for Old Barn Way, Abergavenny, Monmouthshire
Book a Property Valuation