Wyndham Road, Abergavenny - £350,000

bedrooms 4 baths 2 receptions 2
savesaved

On a popular and quiet street, you’ll find this attractive Edwardian end of terrace. Retaining plenty of its original character, whilst ready for modern living it has four bedrooms, two bathrooms, an easily managed garden and views of the little Skirrid.

Key Features

  • Edwardian End Of Terrace
  • No Chain
  • Quiet Residential Area
  • Rear Garden & Views
  • Two Reception Rooms
  • Kitchen & Utility Room
  • Bathroom & Shower Room
  • Four Bedrooms
  • Plenty Of Character
  • Gas Central Heating
  • uPVC Double Glazing
  • Freehold

No 6 Wyndham Road is a deceptively spacious end of terrace, perfect for a growing family or an extended family who like to come and visit.

Inside has been well presented and updated whilst retaining original features such as fireplaces, tiled floors, high ceiling and dado rails.

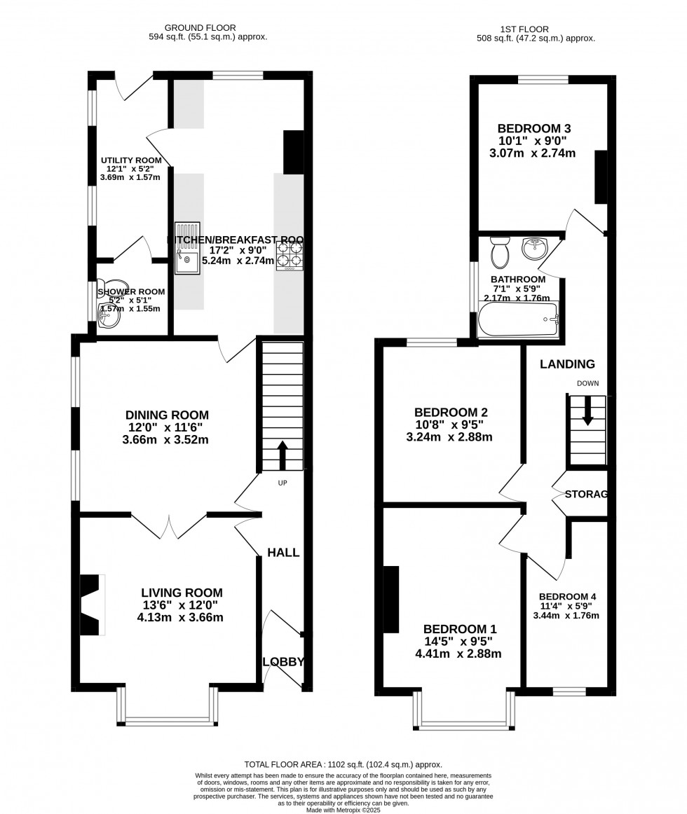
Inside, a welcoming entrance lobby and hall lead to the two reception rooms. At the front is the living room with bay window, stove and double doors to the dining room which allow for (both) a social space, which can be closed off. Off the dining room is the fitted kitchen/breakfast room, utility room and ground floor shower room. Upstairs the landing gives access to the four bedrooms and bathroom. Three bedrooms are doubles, the fourth would make an ideal office. Outside, the rear garden faces West and is easily managed with a large paved patio and attractive brick raised borders. Benefitting from rear and side pedestrian access, its perfect for taking the dog and kids for a walk. 

Wyndham Road is a popular residential street off Hereford Road giving easy access to the towns amenities. The historic market town of Abergavenny is affectionately known as The Gateway to Wales, with the beautiful Brecon Beacons National Park on your doorstep. The town has a range of local amenities such as independent shops, supermarkets, restaurants, hotels, a theatre, cinema, general hospital, primary and secondary schools and a mainline train station. A celebrated annual food festival entices national and international visitors every September, together with cycling, walking, music and art events throughout the year. The town and surrounding area is well known for its renowned gastropubs and restaurants. The town has good road links towards Hereford, Brecon, Swansea, Bristol, Newport and Cardiff via A465, A40 and A4042 trunk roads.

Council Tax: We have been informed that this property has been placed under council tax band ‘D’.

Services: All mains services. Gas central heating. Please note we have not tested the appliances, central heating or services.

Telephone & Broadband: Telephone- subject to BT transfer regulations. According to ofcom the following networks are available: openreach and Ogi. The speeds available are standard, superfast and ultrafast. For more information visit: https://checker.ofcom.org.uk/en-gb/broadband-coverage

Please note you should always confirm this by speaking to the specific provider you would like to use. This is for guidance only.


Floorplan for Wyndham Road, Abergavenny, Monmouthshire
EPC Graph for Wyndham Road, Abergavenny, Monmouthshire
Book a Property Valuation