, Penlan, Brecon - £425,000

bedrooms 4 baths 2 receptions 2
savesaved

Enjoying plenty of space, this four bed, detached home is situated in a sought-after area and benefits from parking, a garage and is within a short walk from the town centre.

Key Features

  • Four Bedrooms
  • No Chain
  • Spacious Detached Family Home
  • Sought After Location
  • Easy Access Of The Town Centre
  • Parking & Garage
  • Neatly Presented Throughout
  • Living/Dining Room
  • Kitchen
  • Utility Room
  • Conservatory
  • Bathroom & En-Suite Shower Room
  • Level Easily Managed Garden
  • Gas Central Heating
  • Freehold

Nythfa Gardens is a private road within easy access of the town centre. Brecon is a traditional market town known for its stunning scenery, rich history and welcoming community. It boasts a wide range of amenities including independent shops, cafés, restaurants, supermarkets, a leisure centre, theatre and the popular weekly market. The town is also well served by both primary and secondary schools, as well as Christ College, a private boarding school for boys and girls aged 7-18. For outdoor enthusiasts, the surrounding countryside is second to none. Residents enjoy immediate access to picturesque walks, cycling routes, riverside paths and iconic peaks such as Pen y Fan. The Monmouthshire & Brecon Canal winds through the area, adding charm and offering peaceful towpath walks. Brecon benefits from good road links, with easy access to Abergavenny, Hereford, Cardiff and Swansea, making it ideal for commuters or those wanting to explore further afield while still enjoying a slower pace of life.

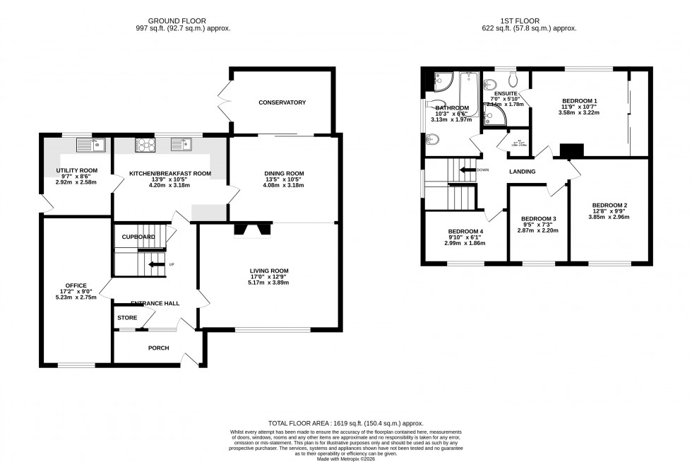
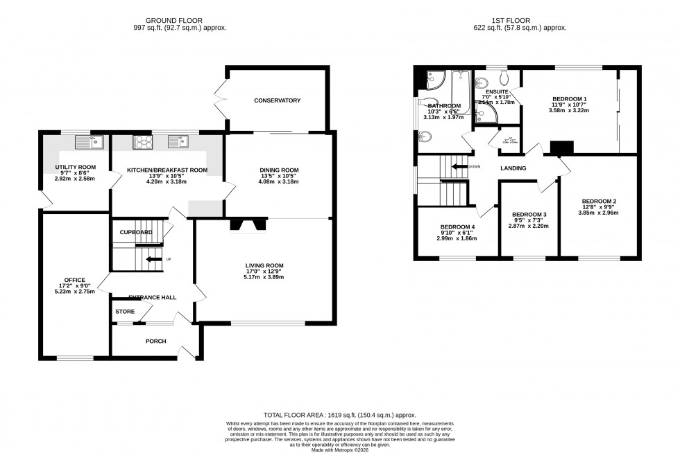
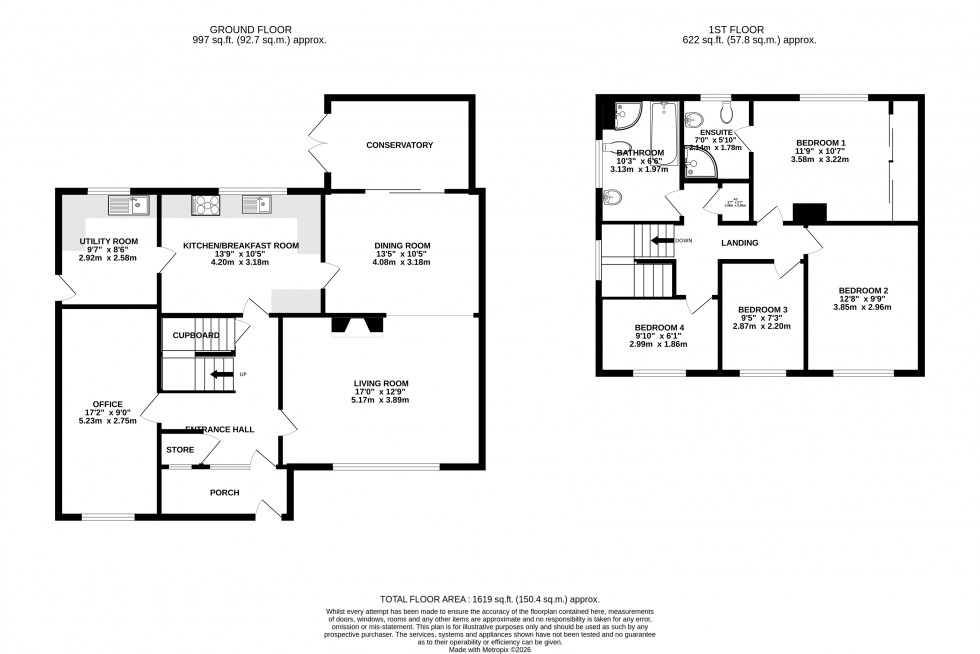
This lovely, detached house is an ideal family home enjoying immaculately presented accommodation making it ready to move straight in to. On the ground floor there is an entrance porch leading into the entrance hallway with useful storage cupboard. To the left is an office, ideal for someone working from home. The kitchen boasts an attractive range of base and wall cupboards, an integrated oven, hob and dishwasher. Off the kitchen is a useful utility room with door to the rear garden. The dining room flows into the living room creating a great space for families and evening meals and enjoys a double sided wood burning stove. Sliding glazed doors off the dining area lead into the conservatory. Upstairs there are four bedrooms, a bathroom with separate shower an jacuzzi bath as well as an en-suite for the master bedroom which also has fitted wardrobes along one wall. Outside at the front of the property there is a driveway leading to the garage which has an electric roller door. There is also shrub and flower borders. Side access leads to the rear garden which is level and easily managed made up of a paved seating area, raised vegetable beds, timber garden shed and built in barbeque area.

Services: All mains services. Gas central heating. Please note we have not tested the appliances, central heating or services.

Council Tax: We have been informed that this property has been placed under council tax band ‘F’.

Please Note: Property has right of way of the access road to Nythfa Hotel 


Floorplan for Penlan, Brecon, Powys
EPC Graph for Penlan, Brecon, Powys
Book a Property Valuation