Buckland Drive, Bwlch, Brecon - £275,000

bedrooms 3 baths 1 receptions 1
savesaved

In a popular village location is this attractively finished and presented, three bed family home enjoying parking and an easily managed garden.

Key Features

  • Three Bedrooms
  • Attractive Mid Terrace House
  • Great Family Home
  • Popular Village Location
  • Neatly Presented Throughout
  • Ready To Move Straight In To
  • Two Parking Spaces
  • Easily Managed Garden
  • Modern Kitchen/Diner
  • Living Room
  • Cloakroom & Bathroom
  • Gas Central Heating
  • Freehold

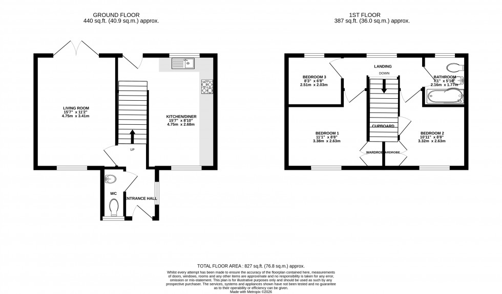
No 11 Buckland Drive is situated in a residential development within the popular village of Bwlch and is an ideal starter family home. On the ground floor there is an entrance hall, convenient cloakroom, good size living room with patio doors opening onto the garden and an attractive kitchen/diner which has plenty of cupboard space, integrated eye level oven, hob, dishwasher, fridge/freezer and plumbing for a washing machine, there is also an understairs cupboard and door to the rear. Upstairs there are three bedrooms, two of which have built in storage. Completing the first floor is a modern bathroom which is fully tiled. Outside at the front there is an open lawned area with path to the front door. The rear garden is attractively designed for low-maintenance living, comprising a paved patio area, shrub borders and decorative chippings. There is also a garden shed and rear access leads to the parking area.

Nestled between the market towns of Brecon and Crickhowell, the charming village of Bwlch is situated within the Bannau Brycheiniog (Brecon Beacons) National Park, offering spectacular views over the Usk Valley and surrounding countryside. A friendly and welcoming community, Bwlch has a traditional village feel with a popular pub and village hall as well as excellent access to countless walks, cycle routes and outdoor pursuits right on the doorstep. The nearby Llangorse Lake and Talybont Reservoir are perfect for watersports, wildlife spotting, and scenic picnics, while Pen y Fan and the central Beacons are only a short drive away for those who love the great outdoors. Despite its rural charm, Bwlch is ideally located for commuting, with Brecon around 7 miles to the west and Crickhowell and Abergavenny to the east, both offering a wide range of shops, schools, restaurants, and leisure facilities. The A40 runs through the village, providing excellent transport links, while Abergavenny railway station offers regular services to Cardiff, Newport, and further afield.

Council Tax: We have been informed that this property has been placed under council tax band ‘D’.


Floorplan for Bwlch, Brecon, Powys
EPC Graph for Bwlch, Brecon, Powys
Book a Property Valuation