Parc Y Castell, Builth Wells - £125,000

bedrooms 2 baths 1 receptions 1
savesaved

A well-proportioned two-bedroom mid-terrace home, conveniently located within easy walking distance of the centre of Builth Wells. Offering generous living space, gardens to both front and rear, and excellent potential for modernisation, this property represents an ideal first-time purchase or investment opportunity, available with no onward chain!

Key Features

  • Mid-terrace home within easy walking distance of the centre of Builth Wells
  • Ideal first-time buyer or buy-to-let investment opportunity with scope for modernisation
  • Spacious reception room with ample space for lounge and dining areas
  • Well-proportioned kitchen with good preparation and storage space
  • Two bedrooms, including a generous rear double bedroom
  • Front and rear lawned gardens with pedestrian rear access
  • Ample unrestricted residents’ parking within the development
  • No onward chain (sale subject to probate being granted)
  • Council tax band - B (2025-6 £1,770.12)
  • Energy performance certificate - C

13 Parc y Castell is a superbly proportioned mid-terrace home, ideally positioned within easy walking distance of the centre of Builth Wells. Offering generous accommodation and excellent potential, the property represents an ideal first-time purchase or buy-to-let investment, with scope for modernisation and redecoration to create a home tailored to individual taste.

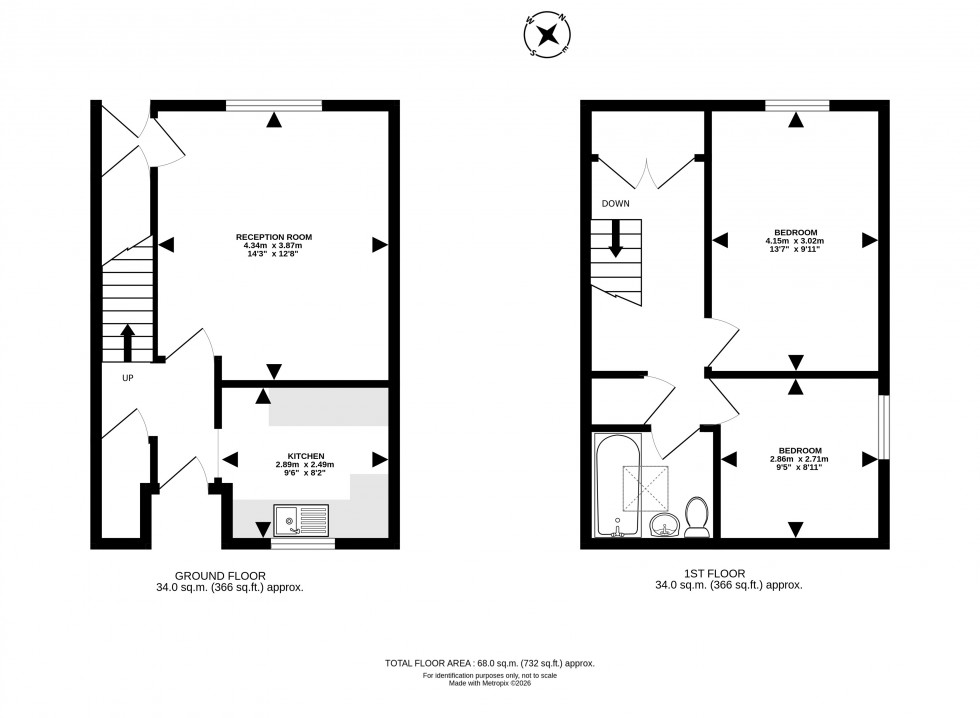
Approached via a pedestrian walkway within Parc y Castell, a footpath leads through the private lawned front garden. The front door opens into an entrance hallway with a large storage cupboard and staircase to the first floor, together with access to the principal ground-floor rooms. The kitchen is well proportioned and square in layout, providing ample space for food preparation and everyday cooking. To the rear, the generous reception room offers excellent versatility, comfortably accommodating both lounge and dining areas. A rear lobby leads from the reception room, providing access to the garden along with useful understairs storage.

On the first floor, the accommodation comprises two bedrooms, including a spacious double overlooking the rear garden and a comfortable single to the front enjoying views across the estate towards the town beyond. A substantial double storage cupboard is accessed from the landing, and the first-floor layout is completed by a family bathroom fitted with a panelled bath, low-flush WC and pedestal wash hand basin.

Externally, the property benefits from both front and rear lawned gardens. The rear garden is laid mainly to lawn and gently sloping, with steps down to a patio area featuring a garden shed and brick-built BBQ, and a pedestrian gate leading into the Co-op supermarket car park. There is ample unrestricted parking available within the development for residents.

Please note: Any sale is subject to probate being granted, which has been applied for.

The property is situated on the fringes of the historic market town of Builth Wells, a settlement with origins dating back to medieval times when it developed as an important market and crossing point on the River Wye. Over the centuries, Builth Wells has retained its charm while growing into a vibrant town offering a comprehensive range of amenities, including primary and secondary schools, a cinema, leisure centre, and sporting clubs for cricket, rugby, football and golf. Internationally renowned for hosting the Royal Welsh Show, Europe’s largest agricultural show, the town attracts visitors from across the UK each year. Excellent transport links make the town easily accessible, with bus routes connecting Cardiff and North Wales and rail services via Builth Road railway station on the scenic Heart of Wales Line. Set within the picturesque Wye Valley and within easy reach of the stunning Elan Valley at Rhayader, the area is a haven for walkers and outdoor enthusiasts. Nature lovers will also appreciate the nearby Gigrin Farm, where the rare and magnificent red kites can be observed up close on a daily basis. This combination of heritage, amenities, and outstanding natural beauty makes the location both highly desirable and perfectly suited for a rural lifestyle with modern convenience.


Floorplan for Parc Y Castell, Builth Wells, Powys
EPC Graph for Parc Y Castell, Builth Wells, Powys
Book a Property Valuation