Monmouth Road, Abergavenny - £239,950

bedrooms 1 baths 1 receptions 1
savesaved

Sold with no onward chain and located close to the town centre, a beautifully-presented, one double bedroom, second floor retirement apartment. Enjoying spacious accommodation, modern fittings and south-facing views.

Key Features

  • Immaculately-Presented Second Floor Retirement Apartment
  • Large Double Bedroom
  • No Chain
  • Modern Kitchen & Shower Room
  • Spacious Living/Dining Room
  • Lift Access
  • Communal Gardens & Residents Lounge
  • Laundry Facilities & House Manager
  • uPVC Double Glazing & Underfloor Heating
  • Leasehold

Riverside Court is a highly sought after retirement complex. Attractively presented and finished to a high standard, it is ideally located on the edge of the town centre and a short walk from the bus station.

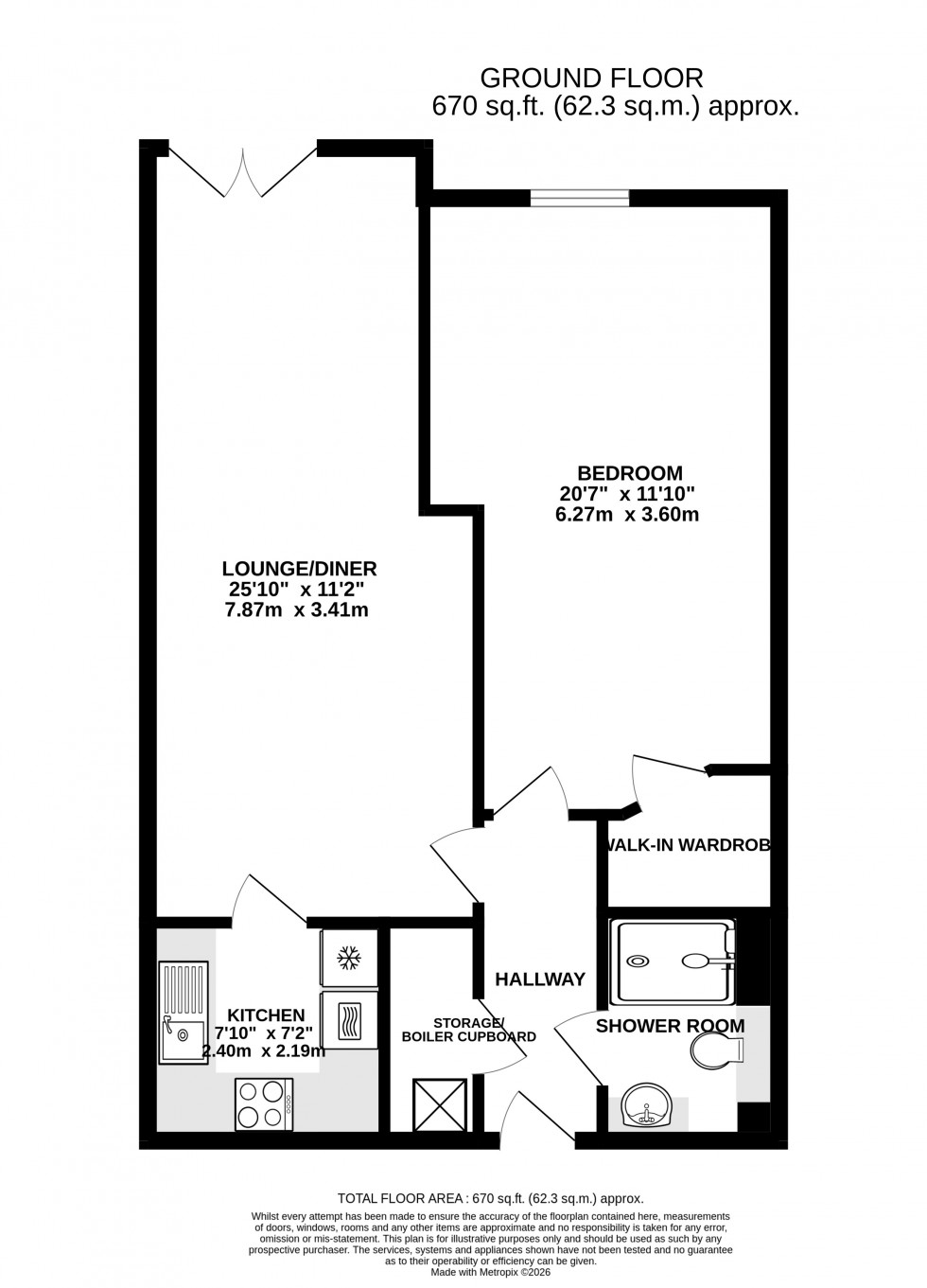
Located on the second floor, this immaculately-presented apartment is sold with no onward chain. The entrance hall has a useful storage/boiler cupboard and gives access to the living/dining room with kitchen off and has French doors to a Juliet balcony which looks towards the Blorenge mountain. The kitchen has a modern range of fitted units, integrated fridge/freezer and eye level oven. The spacious bedroom has a walk-in wardrobe and there is a modern shower room with walk-in shower, toilet and sink. The apartment has underfloor heating throughout, double glazing and a heat recovery system.

Built in 2017 by McCarthy & Stone, the development provides independent living to residents over 60 with house manager and 24-hour care line. The complex enjoys attractive and well-maintained communal gardens, paved patio areas overlooking Swan meadows, a large residents lounge with kitchenette and laundry facilities.

Brief Lease Details: Commenced 2017. Term 999 years. Ground Rent: £247.50 P.A. & Service Charge: £250/month. Purchaser should satisfy their own enquiries through their solicitors.

The historic market town of Abergavenny, is affectionately known as The Gateway to Wales, with the beautiful Brecon Beacons National Park on your doorstep. The town has a range of amenities such as independent shops, supermarkets, restaurants, hotels, a theatre, cinema, general hospital, primary and secondary schools and a mainline train station. A celebrated annual food festival entices national and international visitors every September, together with cycling, walking, music and art events throughout the year. The town and surrounding area is well known for its renowned gastropubs and restaurants. The town has good road links towards Hereford, Brecon, Swansea, Bristol, Newport and Cardiff via A465, A40 and A4042 roads.

Council Tax: We have been informed that this property has been placed under council tax band ‘D’.

Services: All mains services. Electric central heating. Please note we have not tested the appliances, central heating or services.

Telephone & Broadband: Telephone- subject to BT transfer regulations. According to Ofcom the following networks are available: Openreach. The speeds available are standard and superfast. For more information visit: https://checker.ofcom.org.uk/en-gb/broadband-coverage

Please note you should always confirm this by speaking to the specific provider you would like to use. This is for guidance only.


Floorplan for Monmouth Road, Abergavenny, Monmouthshire
EPC Graph for Monmouth Road, Abergavenny, Monmouthshire


Book a Property Valuation