Honddu Court, Brecon - £239,000

bedrooms 3 baths 2 receptions 1
savesaved

An ideal starter family home in a convenient location benefitting from an easily managed garden and sought after parking.

Key Features

  • three bedrooms
  • popular location within walking distance of the town centre
  • sought after parking
  • easily managed garden
  • great starter family home
  • no chain
  • open plan kitchen/living/dining room
  • cloakroom, bathroom and en-suite

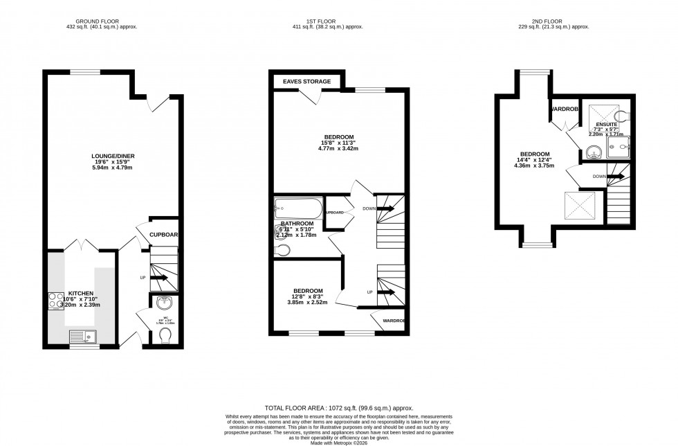
This attractive terraced home makes an ideal first-time purchase or family home, offering well-balanced accommodation arranged over three floors and ticking all the boxes for modern living. The ground floor comprises of an entrance hall, a convenient cloakroom and a great open-plan kitchen/living/dining room, creating a sociable and versatile space. The kitchen is fitted with a range of cupboards and benefits from an integrated oven and hob, along with plumbing for a washing machine. On the first floor are two bedrooms, one being a generous size and the other benefitting from built-in storage. These rooms are served by the family bathroom. The principal bedroom occupies the second floor and enjoys the advantage of built-in wardrobes and its own en-suite shower room. The property further benefits from gas central heating and uPVC double glazing. Offered for sale with no onward chain, it provides a fantastic opportunity for a buyer to add their own personal touches. Outside, there is an easily managed rear garden with a paved seating area and lawn. Rear access leads to the parking area where the property enjoys two allocated parking spaces, a real bonus for a home located so close to the town centre.

Honddu Court is a residential area within walking distance of the town centre and close to The Groves, a wooded area great for walks. Brecon is a traditional market town known for its stunning scenery, rich history and welcoming community. It boasts a wide range of amenities including independent shops, cafés, restaurants, supermarkets, a leisure centre, theatre and the popular weekly market. The town is also well served by both primary and secondary schools, as well as Christ College, a private boarding school for boys and girls aged 7-18. For outdoor enthusiasts, the surrounding countryside is second to none. Residents enjoy immediate access to picturesque walks, cycling routes, riverside paths and iconic peaks such as Pen y Fan. The Monmouthshire & Brecon Canal winds through the area, adding charm and offering peaceful towpath walks. Brecon benefits from good road links, with easy access to Abergavenny, Hereford, Cardiff and Swansea, making it ideal for commuters or those wanting to explore further afield while still enjoying a slower pace of life.

Services: All mains services. Gas central heating. Please note we have not tested the appliances, central heating or services.

Council Tax: We have been informed that this property has been placed under council tax band ‘C’


Floorplan for Honddu Court, Brecon, Powys
EPC Graph for Honddu Court, Brecon, Powys
Book a Property Valuation