Dan Y Crug, Brecon - £170,000

bedrooms 3 baths 1 receptions 1
savesaved

A three bed, end of terrace house with front & rear gardens and scope to improve and put your own stamp on.

Key Features

  • three bedrooms
  • ideal starter family home or investment
  • established residential area within easy access of the town centre
  • scope for improvement
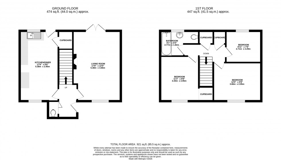
  • living room
  • kitchen/diner
  • downstairs toilet and bathroom
  • easily managed gardens

This end-of-terrace home presents an excellent opportunity for first-time buyers, young families or investors alike, offering well-proportioned accommodation and fantastic potential to personalise. The ground floor comprises an entrance hall, convenient cloakroom and a comfortable living room with patio doors opening directly onto the rear garden, creating a lovely connection between indoor and outdoor space. The kitchen/dining room is fitted with a range of base and wall units, benefits from plumbing for a washing machine and includes a useful understairs storage cupboard. Upstairs, there are three bedrooms and a family bathroom. While the property would benefit from some modernisation, it offers excellent scope for a purchaser to put their own stamp on it. Externally, the property enjoys good size gardens, predominantly laid to lawn with a paved patio area ideal for outdoor dining. Rear access adds further convenience.

Dan Y Crug is an established residential area within easy access of the town centre. Brecon is a traditional market town known for its stunning scenery, rich history and welcoming community. It boasts a wide range of amenities including independent shops, cafés, restaurants, supermarkets, a leisure centre, theatre and the popular weekly market. The town is also well served by both primary and secondary schools, as well as Christ College, a private boarding school for boys and girls aged 7-18. For outdoor enthusiasts, the surrounding countryside is second to none. Residents enjoy immediate access to picturesque walks, cycling routes, riverside paths and iconic peaks such as Pen y Fan. The Monmouthshire & Brecon Canal winds through the area, adding charm and offering peaceful towpath walks. Brecon benefits from good road links, with easy access to Abergavenny, Hereford, Cardiff and Swansea, making it ideal for commuters or those wanting to explore further afield while still enjoying a slower pace of life.

Services: All mains services. Gas central heating. Please note we have not tested the appliances, central heating or services.

Council Tax: We have been informed that this property has been placed under council tax band ‘C’.


Floorplan for Dan Y Crug, Brecon, Powys
Book a Property Valuation