, Talybont-on-Usk, Brecon - £325,000

bedrooms 3 baths 1 receptions 2
savesaved

Situated within the heart of a sought after village is this lovely, three bed semi-detached house enjoying lovely views and lawned gardens.Situated within the heart of a sought after village is this lovely, three bed semi-detached house enjoying lovely views and lawned gardens.

Key Features

  • three bedrooms
  • sought after village location
  • living room with wood burning stove
  • dining room with flagstone flooring
  • kitchen
  • bathroom and separate toilet
  • views
  • lawned gardens
  • no chain

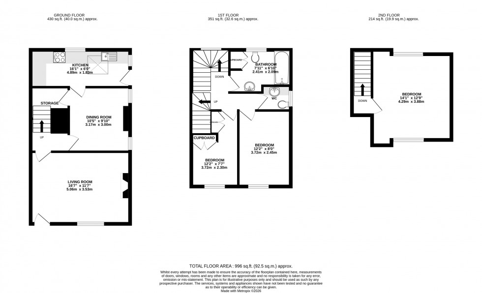
This delightful three bed, semi-detached house is situated in the heart of the village and enjoys attractive views over the canal to the front. Currently operating as a successful holiday let, it would equally make a wonderful full-time home. On the ground floor, a good-sized living room provides a warm and inviting space with wooden flooring and a charming stone chimney breast housing a wood-burning stove. This leads through to the dining room which features flagstone flooring and a useful understairs storage cupboard, creating a characterful and practical area for dining and entertaining. Completing the ground floor is the kitchen, fitted with a range of cupboards and worktop space, along with a ceramic sink, space for a cooker and plumbing for both a dishwasher and washing machine. A side door provides access to the garden. On the first floor there are two bedrooms, both with wooden flooring, together with a spacious bathroom and a separate toilet. The third bedroom is located on the second floor, offering a cosy retreat and elevated views. All three bedrooms enjoy pleasant views over the canal to the front. Outside, the garden is positioned to the side of the property and is mainly laid to lawn with a paved seating area, shrub borders and a useful garden shed, providing a lovely space to relax and enjoy the surroundings. Offered with no onward chain, viewing is highly recommended.

Talybont-on-Usk is a charming and picturesque village set within the stunning surroundings of the Brecon Beacons National Park. At the heart of the village is the beautiful Monmouthshire and Brecon Canal, which gently winds through the village and provides a scenic setting for waterside walks, cycling and boating. Nearby, the impressive Talybont Reservoir and the surrounding woodland offer excellent opportunities for outdoor recreation including walking, mountain biking, fishing and birdwatching. The area is particularly popular with those who enjoy the outdoors, with countless trails leading directly into the surrounding hills and mountains. Despite its tranquil setting, Talybont-on-Usk has a welcoming village feel with amenities including a village shop and café, and village hall. The village also benefits from easy access to the wider region, with the historic town of Brecon providing a wider range of shops, supermarkets, restaurants and services. With its combination of beautiful scenery, outdoor lifestyle and friendly community, Talybont-on-Usk is a highly desirable place to live for those seeking a countryside setting within one of Wales’ most celebrated landscapes.

Services: Mains electricity, water and drainage. Oil fired central heating. Please note we have not tested the appliances, central heating or services.

Council Tax: We have been informed that this property has been placed under council tax band ‘TBC’.


Floorplan for Talybont-on-Usk, Brecon, Powys
Book a Property Valuation