Cwm Lane, Govilon, Abergavenny - £1,850 PCM

bedrooms 3 baths 2 receptions 2
savesaved

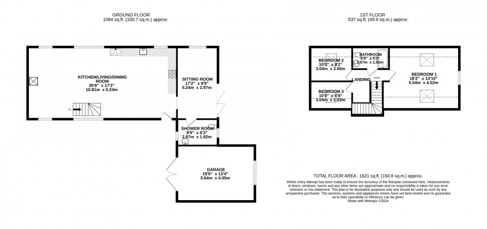
Set on its own and at the end of the line, a stunning three bedroom barn conversion enjoying wonderful views and is ideal for someone wanting peace and quiet. Inside comprises an open plan living accommodation, bath and shower rooms, parking and a decked garden.

Key Features

  • Detached Barn Conversion
  • Rural Location with Views
  • Three Bedrooms, Bath & Shower Rooms
  • Open Plan Kitchen/Dining/Living Room
  • Sitting Room
  • Decked Garden, Parking & Garage

Set on its own and at the end of the line, a stunning three bedroom barn conversion enjoying wonderful views and is ideal for someone wanting peace and quiet. The barn comprises of a large open plan kitchen/living/dining room, sitting room, shower room on the ground floor and three bedrooms and bathroom on the first. Outside there is parking and a garage and a decked garden where you can sit and enjoy the view. The barn has let as a holiday let for the last six years and is at the end of accessible narrow lane, which adds to remote nature and charm.

• Three Bedroom Barn Conversion

• Open Plan Kitchen/Living/Dining Room

• Separate Sitting Room

• Shower & Bathrooms

• Parking & Garage

• Rural Countryside Location

• Oil Central Heating

• Council Tax band ‘TBC’

• Un-Furnished

• Deposit required £2500

• Land & Barns Available via Separate Negotiation

PLEASE NOTE: ALL CONTRACT HOLDERS ARE REQUIRED TO COMPLETE AN APPLICATION FORM PROVIDING REFERENCES. WE WILL ALSO REQUIRE INFORMATION TO CARRY OUT A CREDIT CHECK WHICH IS PROVIDED BY A THIRD PARTY.


Floorplan for Govilon, Abergavenny, Monmouthshire
EPC Graph for Govilon, Abergavenny, Monmouthshire
Book a Property Valuation