Victoria Street, Abergavenny - £250,000

bedrooms 2 baths 2 receptions 1
savesaved

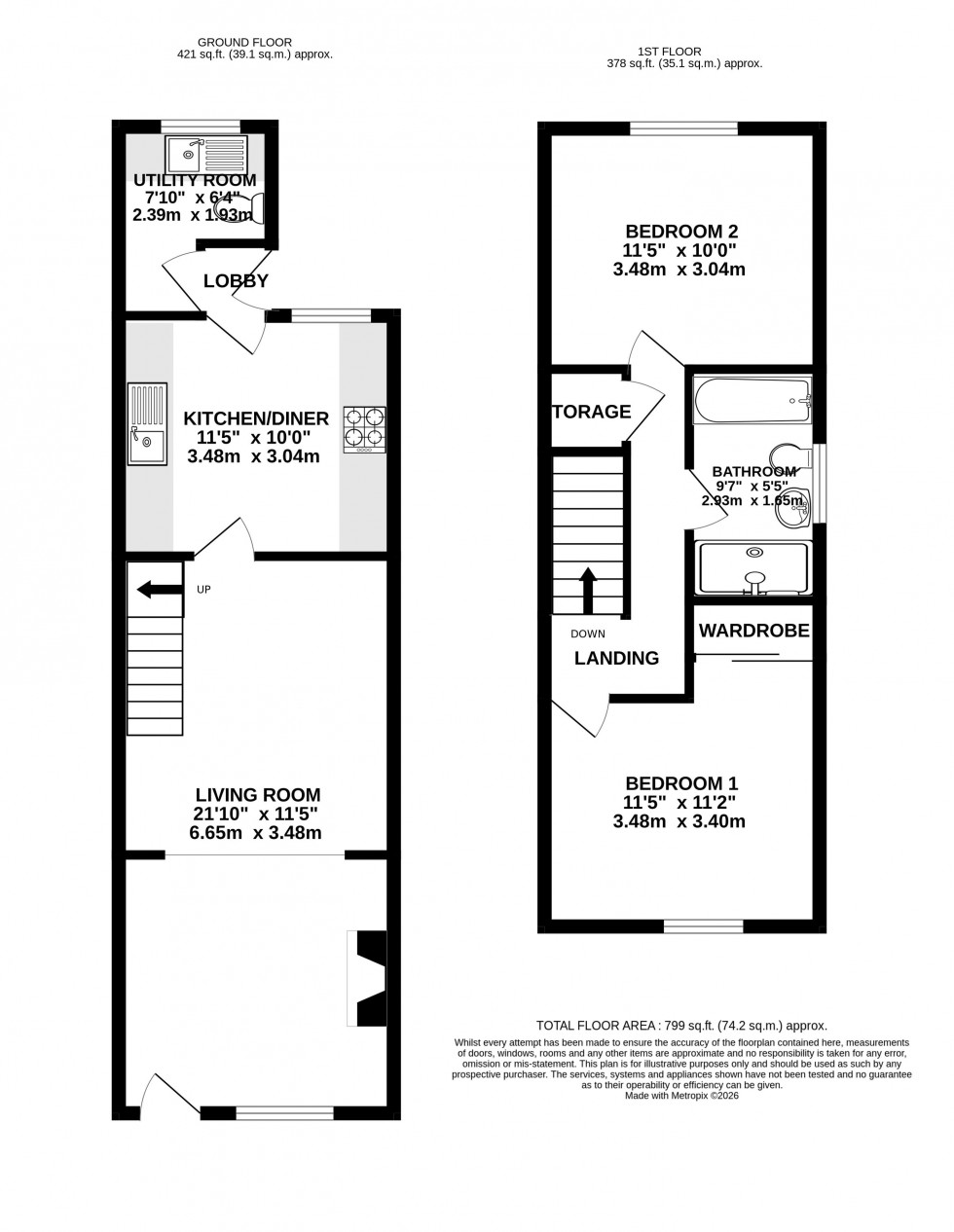
In a convenient location just a short walk from the town centre, a spacious two double bedroom, end of terrace. Updated by the current owner, it has a first floor bathroom, kitchen/diner and easily managed garden.

Key Features

  • End of Terrace House
  • Two Double Bedrooms
  • Conveniently Situated Near Town
  • Ideal Down Size or First Home
  • Kitchen/Diner
  • Living Room
  • Utility Room/WC
  • Bathroom With Separate Shower
  • Easily Managed Garden
  • Gas Central Heating
  • uPVC Double Glazing
  • No Chain
  • Freehold

A fantastic step onto the property ladder, a deceptively spacious and well-presented mid terrace cottage. Benefitting from a new kitchen and bathroom, its ready to move straight into. The gas central heating and uPVC double glazed accommodation comprises of a generous living room, kitchen/diner with utility/WC. Upstairs a landing with storage cupboards leads to the two double bedrooms and a bathroom with separate shower and bath. The attic is boarded with lighting providing extra storage.

Enjoying pedestrian side access, the rear garden is easily managed with some shrub planting and useful wooden shed. Mainly paved, its perfect for sitting back and relaxing.

Victoria Street is conveniently situated a short walk from the town centre. The historic market town of Abergavenny is affectionately known as The Gateway to Wales, with the beautiful Brecon Beacons National Park on your doorstep. The town has a range of local amenities such as independent shops, supermarkets, cafés, restaurants, hotels, a theatre, cinema, general hospital, primary and secondary schools and a mainline train station. A celebrated annual food festival entices national and international visitors every September, together with cycling, walking, music and art events throughout the year. The town and surrounding area is also well known for its renowned gastropubs and restaurants. The town has good road links towards Hereford, Brecon, Swansea, Bristol, Newport and Cardiff via A465, A40 and A4042 trunk roads.

Council Tax: We have been informed that this property has been placed under council tax band ‘D’.

Services: All mains services. Gas central heating. Please note we have not tested the appliances, central heating or services.

Telephone & Broadband: Telephone- subject to BT transfer regulations. According to ofcom the following networks are available: openreach and Ogi. The speeds available are standard, superfast and ultrafast. For more information visit: https://checker.ofcom.org.uk/en-gb/broadband-coverage

Please note you should always confirm this by speaking to the specific provider you would like to use. This is for guidance only.


Floorplan for Victoria Street, Abergavenny, Monmouthshire
EPC Graph for Victoria Street, Abergavenny, Monmouthshire
Book a Property Valuation