Caer Beris Holiday Park, Llanynis, Builth Wells - £170,000

bedrooms 3 baths 1 receptions 1
savesaved

A beautifully modernised three-bedroom holiday lodge, larger than average internally, set within the historic and highly regarded Caerberis Lodge Park. Boasting a private surrounding garden (approx. half an acre!) and driveway (to be installed prior to completion), this stylish retreat offers space, comfort, and the perfect base to enjoy the peace and natural beauty of the Welsh countryside!

Key Features

  • Open 19th February to 5th January annually (closed period applies – lodge must be vacated)
  • Proven potential for holiday letting, with some owners using lodges as Airbnb-style investments
  • Sought-after Caerberis Holiday Park location, just a short distance from Builth Wells
  • Beautifully modernised interior creating a stylish and comfortable retreat
  • Spacious open-plan kitchen/reception room, perfect for relaxing and entertaining
  • Three bedrooms offering flexible accommodation for family and guests
  • Contemporary bathroom plus separate, practical utility room
  • Private surrounding gardens with attractive views and a peaceful setting
  • Driveway to be installed prior to completion for convenient off-road parking
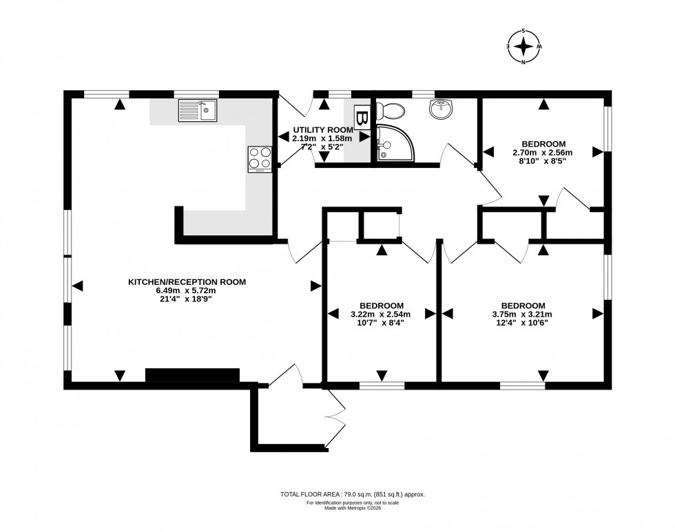
  • Energy-efficient, well-insulated lodge with approx. 79 sq.m (851 sq.ft) and a straightforward, fast purchase process without lengthy solicitor delays

Situated within the popular Caerberis Holiday Park, just a short distance from the market town of Builth Wells, this well-presented and energy-efficient holiday lodge provides an excellent opportunity to acquire a peaceful countryside retreat. The property has been modernised internally by the current owners to create a comfortable and inviting living space, ideal for use as a holiday home or weekend escape.

The accommodation is well laid out and centres around a generous open-plan kitchen/reception room, offering ample space for both relaxing and entertaining. In addition, there are three bedrooms, providing flexible accommodation for family and guests, along with a modern shower room and the added benefit of a separate utility room.

Externally, the lodge enjoys private gardens extending to roughly half an acre surrounding the property, creating a tranquil setting to relax and take in the attractive views of the surrounding area. Raised decking extends around the front of the chalet, providing a delightful space to enjoy a morning coffee or an evening glass of wine. A driveway will be installed prior to completion, adding convenient off-road parking.

The lodge is well insulated and energy-efficient, making it suitable for use throughout the year, and offers approximately 79.0 sq.m (851 sq.ft) of accommodation within a pleasant and well-regarded holiday park setting.

The lease term is expected to be approximately 99 years, with the current service charge in the region of £3,000 per annum, to be confirmed prior to a sale being agreed. 

This is an excellent opportunity to secure a ready-to-enjoy holiday lodge in a convenient yet peaceful location, ideal for those looking to enjoy the best of Mid Wales in a low-maintenance and relaxing environment.

The holiday park is open from 19th February through to 5th January each year, with the properties required to be vacated during the closed period. It should also be noted that some owners within the park have chosen to purchase these lodges as holiday lets, including for use as AirBnB-style accommodation, offering potential for additional income.

Caerberis Lodge Park is set just outside the charming spa town of Builth Wells, nestled on the edge of the Brecon Beacons and surrounded by some of the most stunning landscapes in Wales. The park occupies 34 acres of beautifully maintained grounds along the banks of the River Irfon, offering lodge owners a tranquil escape in a truly remarkable setting. Originally part of Lord Swansea’s estate, the park has matured gracefully over the past thirty years, blending natural beauty with a sense of privacy and calm. Its riverside location, private fishing lake, and extensive network of walking and cycling routes provide endless opportunities to enjoy the great outdoors, making it a haven for nature lovers and those seeking a peaceful retreat. Local amenities are just a short drive away in Builth Wells, including primary and secondary schools, leisure facilities, a cinema, and a range of sporting clubs including cricket, rugby, football, and golf. The town is also home to the internationally renowned Royal Welsh Show, the largest agricultural show in Europe. Excellent transport links include the Heart of Wales railway line at Builth Road Station and regular bus services connecting Cardiff to North Wales. The surrounding area offers a wealth of natural attractions, from the breath-taking Elan Valley at Rhayader to the Wye Valley, a designated area of outstanding natural beauty. Wildlife enthusiasts can enjoy unique experiences such as the Red Kite feeding centre at Gigrin Farm, while scenic walks, historic sites, and charming local villages make this part of Powys an exceptional destination for holiday lodge owners. Caerberis Lodge Park combines the peace of an idyllic rural location with convenient access to local amenities and world-class attractions, providing a rare opportunity to enjoy the very best of Welsh countryside living.


Floorplan for Llanynis, Builth Wells, Powys
Book a Property Valuation