Tai Ar Y Bryn, Builth Wells - £275,000

bedrooms 3 baths 1 receptions 1
savesaved

In a great location is this attractive, three bed, detached bungalow enjoying comfortable accommodation, established gardens, parking and a garage.

Key Features

  • three bedrooms
  • detached bungalow
  • parking
  • garage
  • easily managed gardens
  • living/dining room
  • kitchen
  • shower room
  • popular location within easy access of the town centre
  • freehold

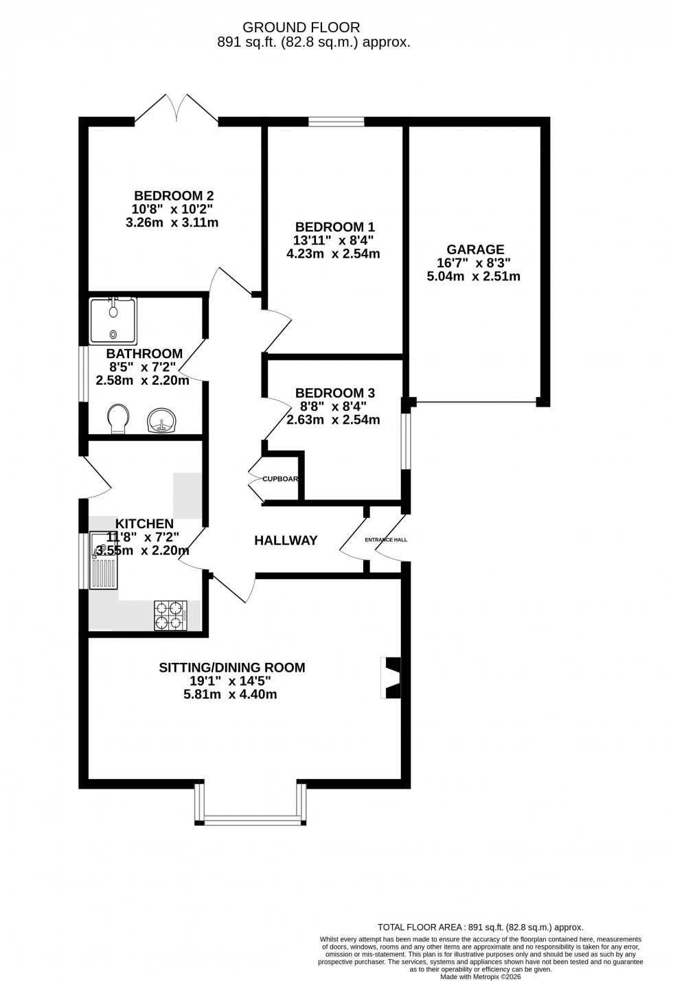
This attractive, easily managed, detached bungalow is in a great location. It provides comfortable, neatly presented accommodation comprising of an entrance hall, a light and airy living/dining room featuring a bay window and a gas fire. The kitchen is fitted with base and wall cupboards, an integrated gas hob and oven and plumbing for a washing machine. There are also three bedrooms and a shower room. The property also benefits from gas central heating and uPVC double glazing. Outside, the gardens are well established with a great mixture of shrub and herbaceous borders and lawns. The garage (5.04 x 2.50) has an up and over door and rear door to the garden. The driveway provides parking and a metal ramp to the front door is great for anyone with mobility issues or can be removed.

Perfectly positioned just moments from the heart of the charming market town of Builth Wells, this prime residential location offers the best of countryside living with all the convenience of town life. From boutique shops to a cinema, leisure centre and a thriving mix of cricket, rugby, football, and golf clubs, Builth Wells has evolved into a sought-after haven for those seeking space, tranquillity, and a vibrant local community. Just to the north lies Llanelwed, home to the world-renowned Royal Welsh Show, the largest agricultural event in Europe, attracting visitors from across the globe. Excellent transport links make the area effortlessly accessible, with regular bus routes connecting Cardiff to North Wales and rail services from nearby Builth Road on the scenic Heart of Wales Line. Set in the breath-taking Wye Valley and close to the dramatic landscapes of the Elan Valley, this is a paradise for outdoor lovers. Miles of walking trails, rolling hills, and river views invite exploration, while the spectacular Red Kite feeding centre at Gigrin Farm offers a rare and unforgettable encounter with these majestic birds of prey.

Services: All mains services. Gas central heating. Please note we have not tested the appliances, central heating or services.

Council Tax: We have been informed that this property has been placed under council tax band ‘E’.


Floorplan for Tai Ar Y Bryn, Builth Wells, Powys
Book a Property Valuation