Heol Sant Gattwg, Llanspyddid, Brecon - £280,000

bedrooms 3 baths 1 receptions 2
savesaved

An immaculately presented, three bed, semi-detached house in a peaceful village location enjoying parking, a garage and easily managed gardens backing onto countryside

Key Features

  • three bedrooms
  • semi-detached house
  • lovely family home
  • popular village location
  • parking and garage
  • easily managed garden
  • delightful countryside views
  • two reception rooms
  • downstairs toilet and attractive shower room
  • ready to move straight in to
  • immaculately presented throughout

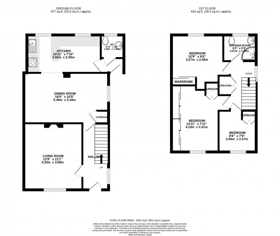
This immaculately presented three bed, semi-detached home offers ideal family accommodation and is ready to move straight into. On the ground floor, an inviting entrance hall with stylish herringbone Karndean flooring sets the tone, flowing seamlessly into the living room. To the rear, a dining/family room provides a wonderful space for both everyday living and entertaining, complete with a cosy wood-burning stove and open access into the kitchen creating a lovely flow. The kitchen is well-equipped with a range of base and wall units, a breakfast bar, integrated oven and hob and plumbing for both a washing machine and dishwasher. A useful side hall and convenient cloakroom complete the ground floor. Upstairs, there are three bedrooms, all benefiting from built-in storage and enjoying pleasant countryside views. These are served by a modern shower room. Externally, the property offers parking and a garage to the front with pretty flower borders. The rear garden is paved with decorative chippings for ease of maintenance, creating the perfect space to relax and enjoy the open countryside backdrop. Further benefits include triple glazing and oil-fired central heating.

Llanspyddid is a popular but peaceful village only 2.5 miles outside Brecon and surrounded by glorious countryside. Brecon is a traditional market town known for its stunning scenery, rich history and welcoming community. It boasts a wide range of amenities including independent shops, cafés, restaurants, supermarkets, a leisure centre, theatre and the popular weekly market. The town is also well served by both primary and secondary schools, as well as Christ College, a private boarding school for boys and girls aged 7-18. For outdoor enthusiasts, the surrounding countryside is second to none. Residents enjoy immediate access to picturesque walks, cycling routes, riverside paths and iconic peaks such as Pen y Fan. The Monmouthshire & Brecon Canal winds through the area, adding charm and offering peaceful towpath walks. Brecon benefits from good road links, with easy access to Abergavenny, Hereford, Cardiff and Swansea, making it ideal for commuters or those wanting to explore further afield while still enjoying a slower pace of life.

Services: Mains electricity, water and drainage. Oil fired central heating. Please note we have not tested the appliances, central heating or services.

Council Tax: We have been informed that this property has been placed under council tax band ‘D’.


Floorplan for Llanspyddid, Brecon, Powys
Book a Property Valuation