Main Road, Gilwern, Abergavenny - £225,000

bedrooms 2 baths 1 receptions 1
savesaved

Centrally position within the village, a deceptively spacious cottage with no onward chain. Currently a successful holiday rental however would make a great first home or downsize move, it has space, character and views from a first floor balcony. Viewing is encouraged.

Key Features

  • Deceptive Mid Terrace Cottage
  • Popular Village Location
  • Views At The Rear
  • Living/Dining Room & Conservatory
  • Kitchen
  • Basement/Hobby Room
  • Two Bedrooms & Bathroom
  • First Floor Balcony
  • Gas Central Heating & uPVC Double Glazing
  • Freehold

Not what it seems from the front. This deceptive cottage has been well presented by the current owners who have been running a successful holiday rental for the last four years.

Found in the heart of the village, it’s a short walk from the pub, canal, pharmacy and chip shop.

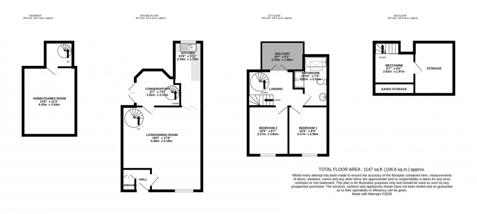
Inside the accommodation comprises of a useful entrance hall opening into a generous living/dining room with feature fireplace and wood burning stove. Doors at the rear open to the kitchen and conservatory. Spiral stairs from the conservatory leading to a unique vaulted cellar currently a games room. From the living room, spiral stairs leading to the landing which has French doors opening onto a balcony with wonderful views. Also off the landing are two double bedrooms, a bathroom with separate shower and bath and access to a useful mezzanine floor with loft storage cupboard.

Gilwern is a village within the Brecon Beacons National Park, located less than 4 miles from both the historic market town of Abergavenny and the picturesque town of Crickhowell. The Monmouthshire and Brecon Canal runs along the edge of the village and the village has a range of local amenities such as pubs, hairdressers, shops and a well-regarded primary school. The village has good road links to the A465 (Heads of the Valley) Road, A40 and A4042 trunk roads.

Abergavenny has a range of independent shops, supermarkets, a theatre, cinema, general hospital, primary and secondary schools and a mainline train station.

Council Tax: We have been informed that this property has been placed under council tax band ‘D’.

Services: All mains services. Gas central heating. Please note we have not tested the appliances, central heating or services.

Telephone & Broadband: Telephone- subject to BT transfer regulations. According to ofcom the following networks are available: openreach and Ogi. The speeds available are standard, superfast and ultrafast. For more information visit: https://checker.ofcom.org.uk/en-gb/broadband-coverage

Please note you should always confirm this by speaking to the specific provider you would like to use. This is for guidance only.


Floorplan for Gilwern, Abergavenny, Monmouthshire


Book a Property Valuation