The Avenue, Brecon - £200,000

bedrooms 2 baths 1 receptions 1
savesaved

This is a superbly modernised two bed end terrace house which needs to be viewed to be appreciated.

Key Features

  • Two Bedrooms
  • Superbly Modernised
  • End Terrace
  • Ideal Starter Home Or Investment Opportunity
  • Living Room With Wood Burning Stove & Underfloor Heating
  • Kitchen/ Diner
  • Bathroom
  • Small Side Yard
  • Gas Central Heating
  • Freehold

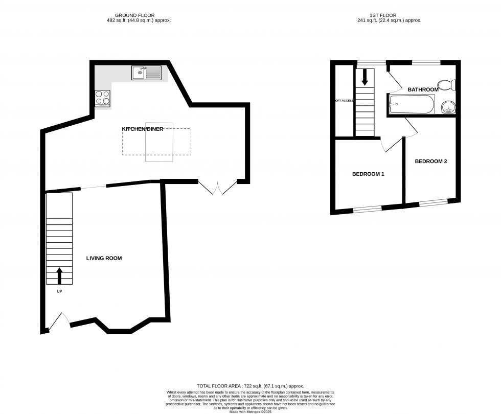
This great end terrace house is a fab opportunity for first-time buyers or investors. The ground floor comprises a living/dining room with wood burning stove and underfloor heating, kitchen with tiled flooring fitted base and wall units, wooden and marble workshops, integrated oven hob, cooker and dishwasher and patio doors which lead out to the rear courtyard. Upstairs, there are two bedrooms, and a bathroom which is fully tiled and has a bath with separate shower. The property also benefits from gas central heating and uPVC double glazing. Outside, the garden is easily managed and low maintenance with a small rear courtyard.

The Avenue is just a short walk from the town centre, Brecon Castle and the River Usk Promenade. Brecon is a traditional market town, the centre of the Brecon Beacons National Park. Surrounded by wonderful countryside it has a wide range of shops and amenities which include a cinema, theatre, leisure centre, library and golf course. It also has several good primary schools, a secondary school, college of further education and Christ College a private boarding school for boys and girls aged 7-18. With good access links Cardiff, Swansea and Hereford are all an hour’s drive and the nearest train station is in Abergavenny which is 20 miles away.

Council Tax: We have been informed that this property has been placed under council tax band ‘D’.

Services: All mains services. Gas central heating. Please note we have not tested the appliances, central heating or services.


Floorplan for The Avenue, Brecon, Powys
Book a Property Valuation